Строительство комплекса производственных зданий на территории завода
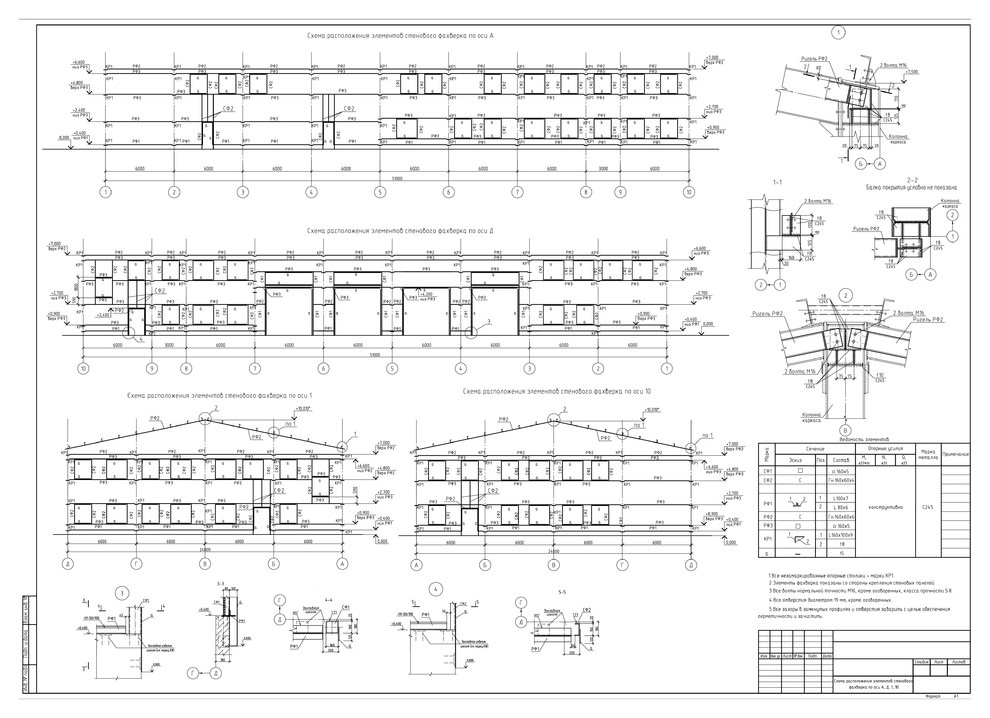
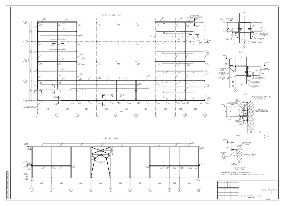
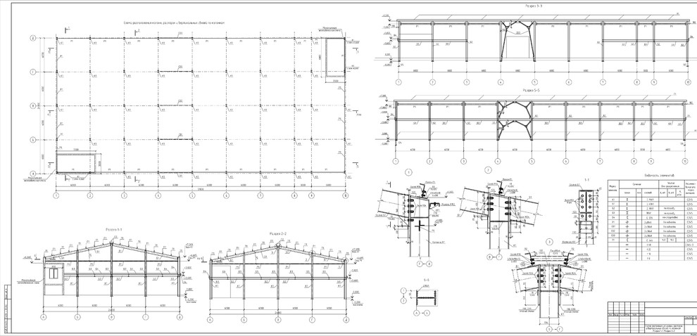
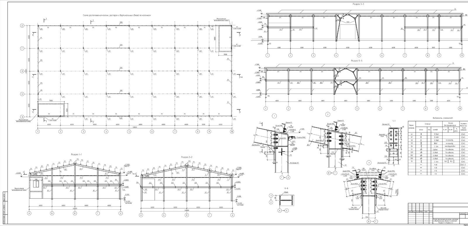
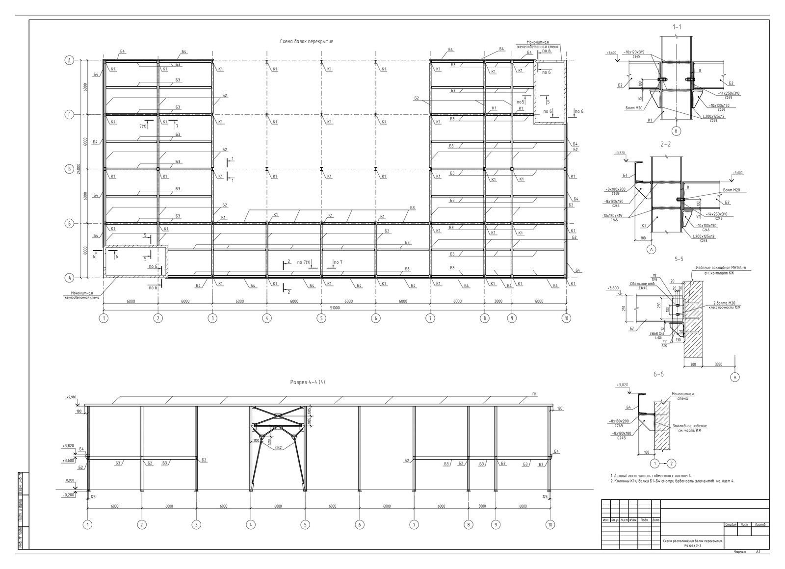
В рамках проекта было запроектировано 3 здания: . 1. Здание стоянки пожарной техники; . 2. Здание обезвоживания осадка; . 3. Станция перекачки производственно-дождевых сточных вод. . Статус проектирования - завершено. . Статус строительства - завершено.
Год реализации: 2016
Стоимость проектирования: 525 000 ₽
г. Нижний Новгород
21 фотография






















