Магазин, расположенный по адресу: Московская область, г. Волоколамск
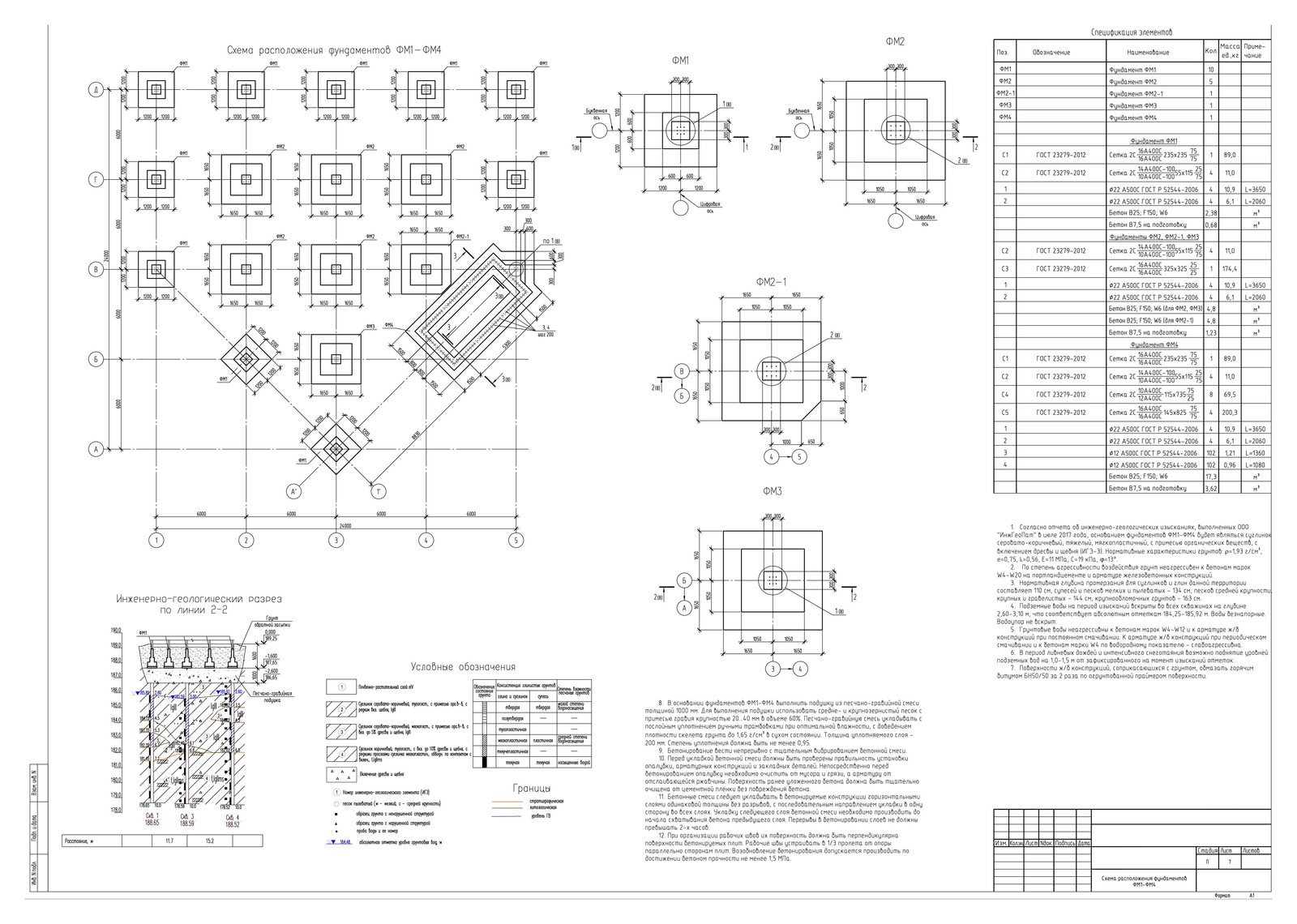
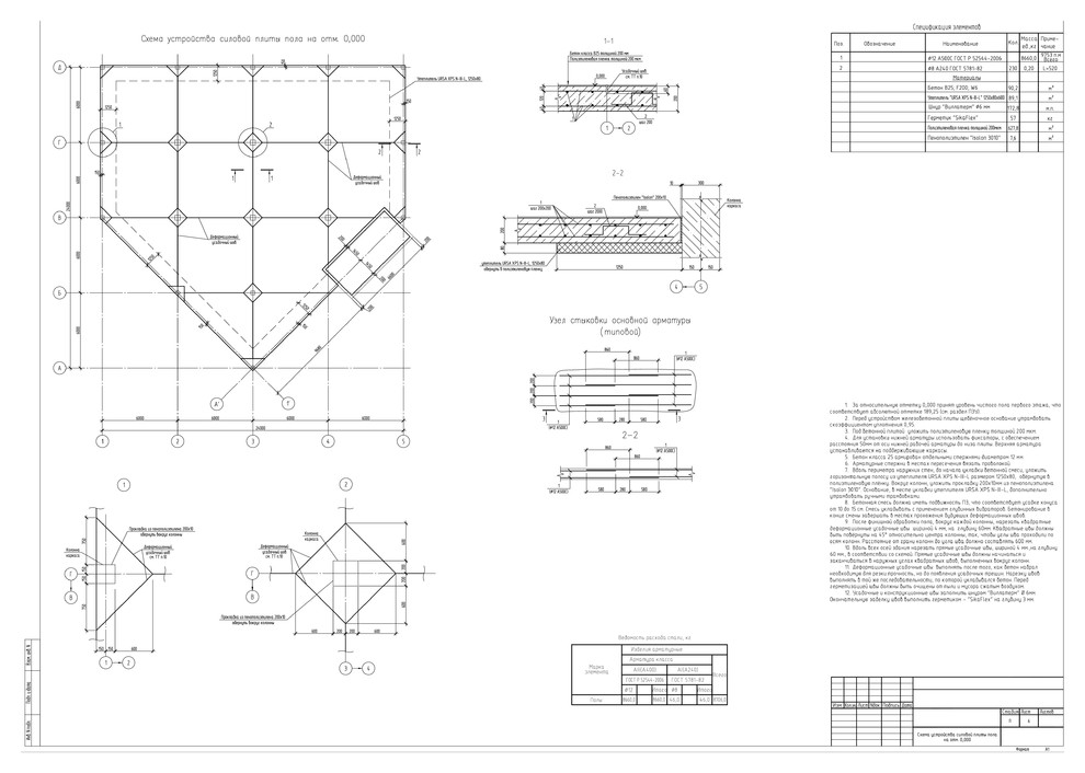
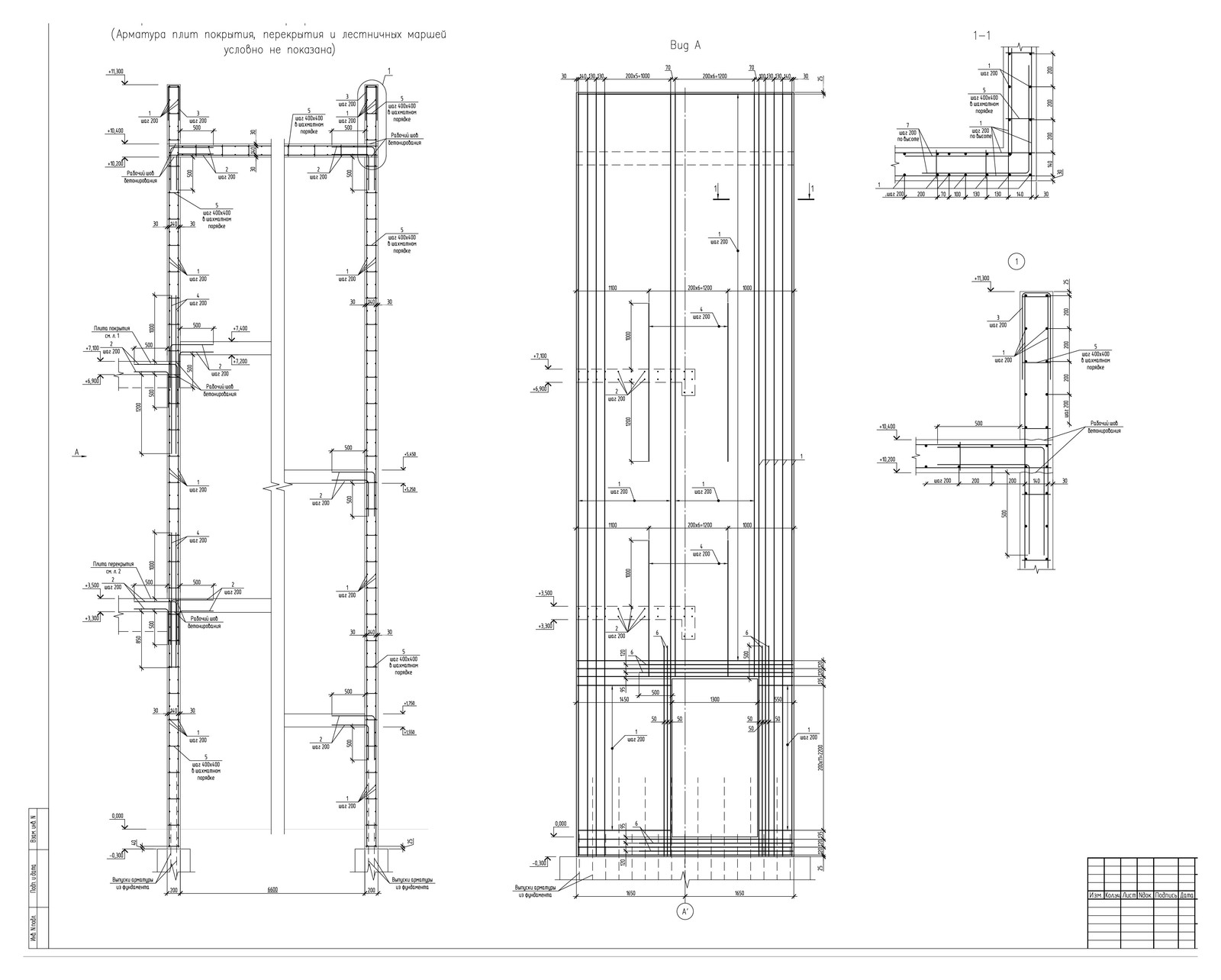
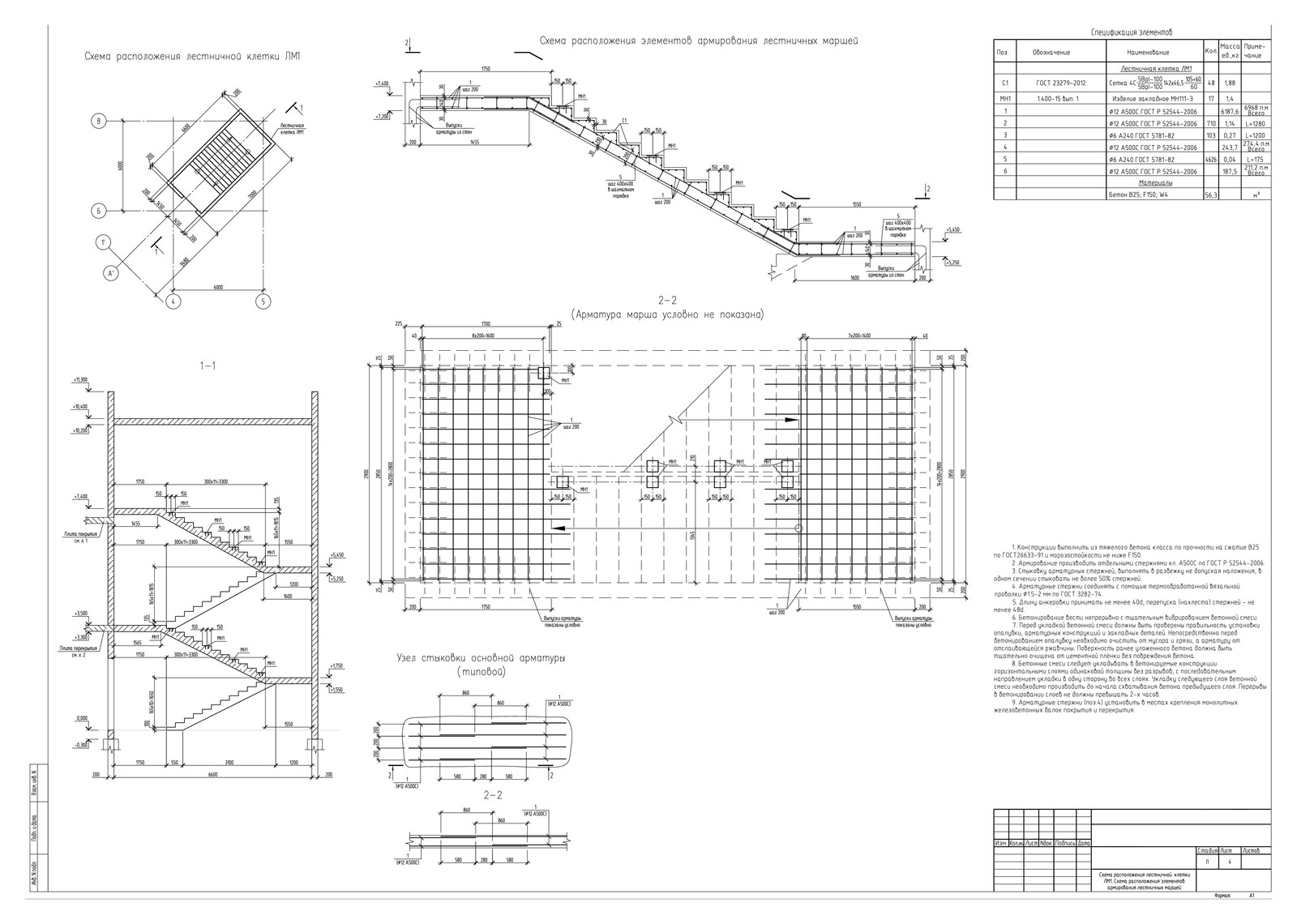
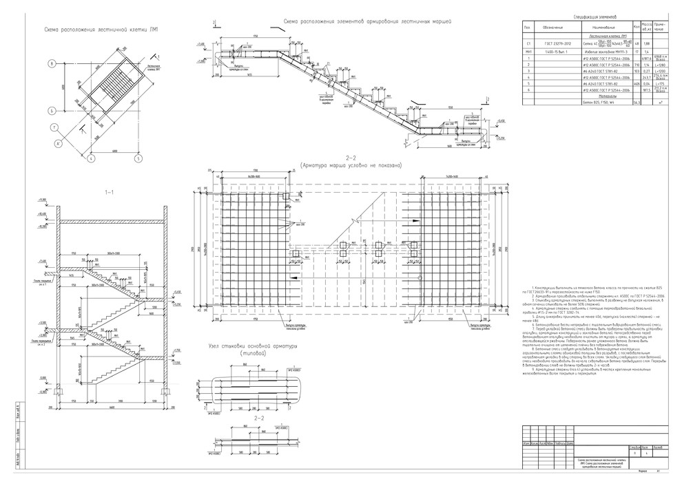
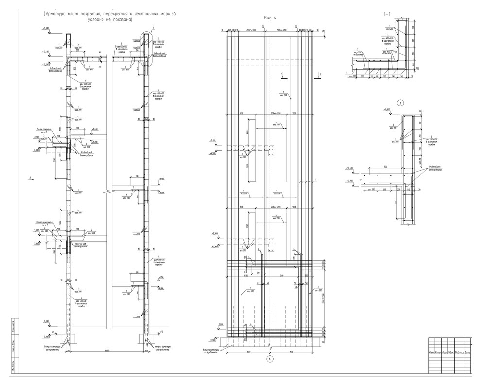
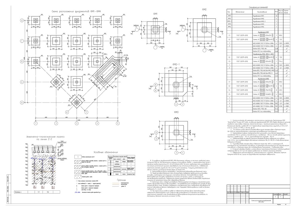
Здание магазина – проектируемое двухэтажное сложное в плане отдельно стоящее здание (далее - здание). . Размеры здания в осях 24,024,0 м. . Высота первого этажа здания - 3,6 м. . Высота второго этажа - 3,6 м. . Конструктивная схема здания – каркас из железобетона с балочным перекрытием и покрытием. . Колонны – железобетонные, шаг - 6,0 х 6,0 м. . Лестничная клетка выполнена в виде ядра жесткости. . Перекрытие и покрытие – монолитное железобетонное балочное толщиной 200 мм. . Стадия проектирования - выполнена стадия П.
Год реализации: 2018
9 фотографий










