
Проектирование и строительство
0
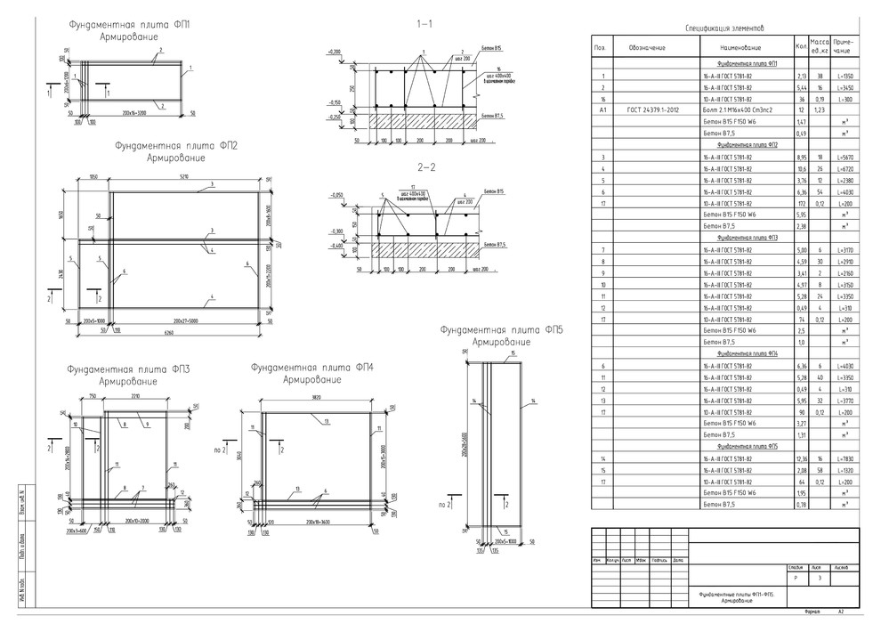
Реконструкция теплового пункта в 101 микрорайоне г. Волгограда
В рамках реконструкции (в отношении строительной части) были заменены фундаменты под тепловое оборудование, выполнен приямок для сбора конденсата. . Статус проектирования - выполнена проектная и рабочая документации. . Статус строительства - в работе.
Другие фотографии в проекте
Вопросы к фото 0
Задайте вопрос
Вам ответят эксперты. Пришлем уведомление, когда вам ответят




