Проект | Загородная Резиденция | Стиль «Дом Прерий» Фрэнка Ллойда Райта | 2021
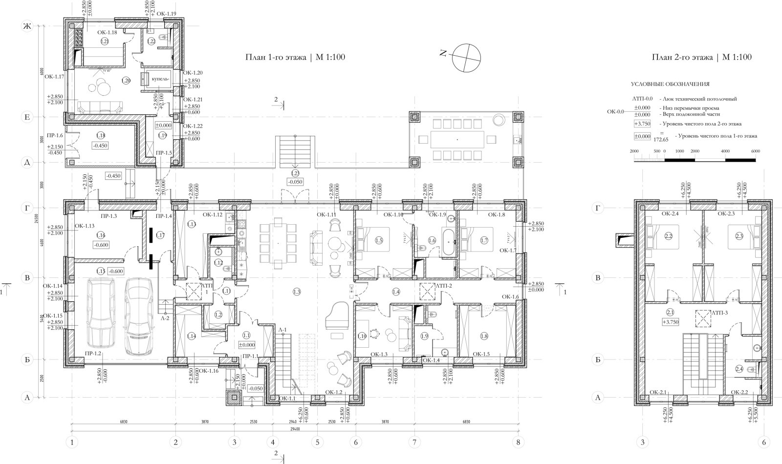
Авторы архитектурного проекта | Михаил Топоров | Илья Коршик . Конструктор | Андрей Токарь . . Концепция частного дома выполнена в духе архитектуры “домов прерий” выдающегося американского архитектора Фрэнка Ллойда Райта. . . Дом расположен на территории с активным рельефом, жилые помещения и террасы для летнего отдыха обращены в сторону живописных и лиричных прилегающих территорий – долины ручья, конного завода и леса. . Как дом, так и его помещения благоприятно вписаны в участок — спальни и террасы обращены на восток, кухня-гостиная — и на восток, и на запад, что создаёт наиболее комфортные условия для жильцов дома и гостей. Технические помещения обращены на север. На первом этаже скомпоновано пространство для хозяев дома, а на втором этаже расположен гостевой блок. . . Основной объём дома и баня расположены на общем фундаменте и под единой кровлей, под которой также предусмотрена обширная терраса для весенне-летних пиршеств и увеселений. . . Конструкционные решения . Тип фундамента | монолитная ж/б плита . Силовой каркас и перекрытия |монолитный ж/б . Наружные стены | кладочный материал . Кровля | деревянная стропильная конструкция . . Отделочные и финишные материалы . Цоколь | гранит . Фасады | ригельный клинкер |планкен . Кровля | фалец . Терраса | декинг . Ограждения | стеклянные
7 фотографий







