Руконструкция Террасы | Биоклиматическая Пергола | 2020
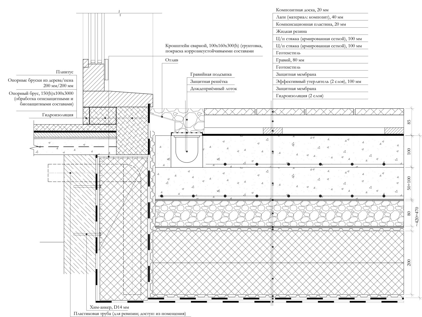
Генподрядчик | ООО Штайнер . Руководитель проекта | Алла Савельева . Архитектор | Михаил Топоров . Ландшафт | Татьяна Каманина . Партнёр | Геометрия пространства . . Реконструкция проведена в связи с необходимостью улучшить функционально-эстетические качества загородного дома и ненадлежащем состоянием некоторых его конструкционных систем, а именно имели место быть: . - нарушение целостности гидроизоляционного контура; . - нарушение целостности теплового контура; . - деградация ряда конструкционных и лицевых материалов; . - морально-техническое устаревание и выход из строя определённых элементов и материалов; . - и пр. . . Биоклиматическая пергола . В ходе реконструкции дома и террасы был проведён демонтаж ранее существовавших павильонов с подготовкой под устройство новых пергол, разработанных комплексным проектом. . . В результате была спроектирована современная и прогрессивная биоклиматическая пергола с крышей с поворотно-раздвижными ламелями и боковым сдвижным остеклением для благоприятного отдыха в периоды летнего зноя/весенне-осенней прохладной поры/дождей и ненастья. . . Выбранная модель биоклиматической перголы обладает интегрированными системами освещения, обогрева (посредством инфракрасных нагревателей), а также системой дождеприёмных лотков со сливом в общедомовую ливнёвку. . . В ходе исследований состояния конструкций выявлено отсутствие утепления на участке стыка вертикальных наружных конструкций дома и его кровли. Это обуславливало образование конденсата, промерзания и пр. негативных аспектов, создававших условия для деградации конструкционных и отделочных материалов и мебели. . . В ходе реконструкции данные нарушения были устранены. . . Также были произведены ремонтные работы напольных покрытий (плитка и декинг). . . Согласно конструкционному расчёту были установлены закладные элементы под монтаж опорных ног биоклиматических пергол. . . Проект выполнен в коллаборации с российско-швейцарской компанией ООО «Steiner-Build».
12 фотографий












