Интерьеры | ЖК «Лайнер» | Чёрное море | Анапа | 2019
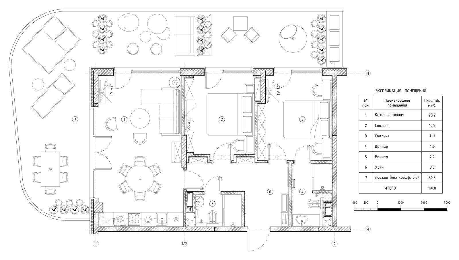
Авторы | Михаил Топоров | Илья Коршик . . Жилой комплекс «Лайнер» располагается на берегу Чёрного моря (1-я линия застройки). Для разработки интерьеров апартаментов были привлечены я и мой коллега Илья Коршик. . . Концепция застройщика предлагает клиенту купить полностью готовые и укомплектованные мебелью и оборудованием апартаменты. Поэтому важнейшей задачей при проектировании было найти верное решение по унифицированному и общему для всех интерьеров жилого комплекса стилю и характеру всех 145 апартаментов с возможностью будущей адаптации под индивидуальность каждого клиента. . . Наиболее выигрышной стороной жилого комплекса являются обширные террасы и панорамные окна в пол, откуда открываются замечательные и романтичные виды на Чёрное море. Мы решили выгодно подчеркнуть это качество апартаментов в дизайне интерьеров. Для этого создали нейтральный и лаконичный по своему характеру и образу интерьер в соответствии с лучшими образцами средиземноморской европейской архитектуры и декора, который будет выгодно подчёркивать открывающиеся из окон и с террас виды на море и песчаные пляжи. . . Особое внимание мы уделили используемым отделкам и применить эффектные и модные природные отделки, отличающиеся своей изящной простотой, – мрамор калакатта, травертин (на отделку пола террас), тонированный дуб (паркетная доска в спальнях), шпон ореха (отделки мебели и оборудования), лён и хлопок в текстиле и другие. В качестве общего фонового цвета использован объединяющий и освежающий в южном жарком климате белый цвет. . . Образ дома-океанского лайнера оригинально подчеркнут использованием в интерьере дверей с иллюминаторами и аксессуарами на морскую тематику – картинками и фотографиями с сюжетами. . При проектировании застройщик просил особое внимание уделить террасам, организовав на них пространство таким образом, чтобы клиентам было особенно приятно и комфортно проводить на них время. Мы учли эти пожелания и создали на террасах различные по назначению зоны – обеденную, коктейльную с лаундж-пространством для релакса, площадки с лежаками, подвесными креслами, столиками для интеллектуальных игр. Разделение функциональных зон выполнено за счёт грамотной расстановки террасной мебели и озеленения. Для комфортного нахождения на террасах в ночное время суток предусмотрена скрытая LED-подсветка. . . Одной из важных задумок авторов проекта является возможность адаптации интерьеров самими клиентами самостоятельно – аксессуарами, текстилем, перекраской стен или применением обоев (локально или широко). Выбранная группа отделочных материалов и цветов универсальна и может быть дополнена практически любыми цветами – серым, жёлтым, охристыми, терракотовыми и многими другими. Используемый в отделке белый цвет позволит нанести другой отделочный материал с минимальными усилиями. . . Планировочные решения предусматривают удобные, логичные и эргономичные пространства интерьеров, которыми будет удобно пользоваться любому человеку.
12 фотографий












