Проект "Пятьдесят оттенков бирюзы"
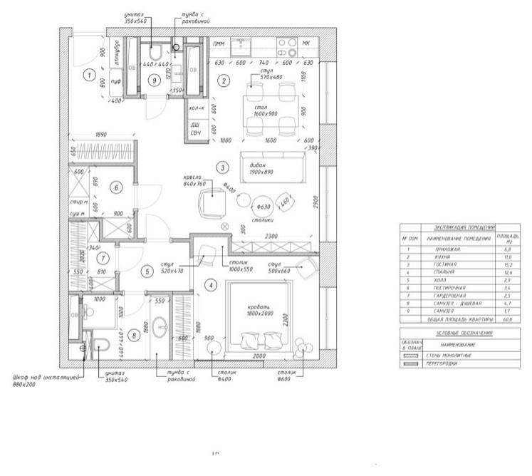
Эта небольшая по метражу квартира подкупает своей комфортабельностью и изысканной простотой. Это и было главным пожеланием заказчиков. Нам не пришлось втискивать сюда несколько детских комнат или кабинет - а это позволило просто следовать за мечтой супругов и организовать квартиру только для них — для комфортной жизни вдвоем. Изысканность дизайна — в «разливающейся» по комнатам и помещениям квартиры бирюзе: от нежно мятных оттенков в спальне до глубких иссиня-зеленых тонов в гостиной и прихожей. . . Настроение спальни — буквально укутывающее спокойствием и тишиной — создает ее цветовое решение. Красивый серый фон центральной стены как будто подсвечен нежными розовым обоями на стене напротив кровати. Изюминка обоев - их легкая «каменная» структура. В качестве акцента использован нежно-мятный оттенок обивки кровати. Настроение поддерживает и продолжает мятно-шалфейный цвет фасадов встроенных шкафов. Дополняют ансамбль мягкие серо-бежевые портьеры и прозрачный тюль на окне. . Неслучаен выбор формы изголовья кровати — оно мягкое, обтекаемое, манящее. Для поддержания настроения были использованы «женские» элементы в форме круга: круглые зеркала и светильники с круглыми элементами. . . Нам не хотелось использовать стандартные прикроватные тумбочки, поэтому с одной стороны кровати появилась изящная золотая этажерка, в отклик ей — столик с золотым основанием-цаплей с другой стороны. . В комнате сделана ниша, в которой встроен туалетный столик. . Из спальни есть выход в небольшую гардеробную комнату, где очень удобно и компактно организованы места для хранения. . . В гостиной использованы более яркие и насыщенные оттенки. Здесь «царит» цвет «петроль», один из трендовых оттенков в интерьерах — цвет, ошеломляющий своей сочностью и красотой. Его можно назвать глубоко-мятным, лазурно-синим, оттенком морской воды — с любым названием он буквально «делает» комнату. В нашей гостиной-кухне «петроль» настойчив: его мы использовали и на кухонных фасадах, повторили его на стене и фасадах шкафов — так, что они сливаются со стеной и практически не видны, хотя мы и сделали бирюзу фасадов чуть более темной. Центральный остров гостиной — мягкая зона с бирюзового цвета диваном и контрастирующим с ним спокойного бежевого тона креслом. Уравновешивает буйство бирюзы серо-бежевый пол из дерева и легкие прозрачные шторы на окнах. Акценты в гостиной создают черные и золотые элементы, добавляя в интерьер некоторой строгости и шика. . . Ванная комната в этой квартире достойна особого внимания. При входе открывается потрясающий «вид» - лотосы нежных розовых и бирюзовых оттенков. Кстати, по уверениям историков, цветок лотоса носила Нефертити. В стародавние времена лотос символизировал Верхний Египет и украшал герб страны. Греки считали, что цветы лотоса обладают редким даром изгонять из души горе, печаль, обиду. Лотос и сейчас является символом мудрости, счастья и вечной жизни. Эти цветы и стали лейтмотивом помещения, к этим цветам мы подбирали все остальные элементы. Комната получилась особенно нежной за счет использования большого количества розовой плитки «кабанчик», здесь она смотрится просто прекрасно — заказчик с этим согласился. . Зона раковины — очень стильная, стена оформлена несколькими зеркалами, которые размещены на разном уровне. . В зоне душа более «брутальная» плитка изумрудно-зеленого оттенка, а в зоне унитаза мы использовали серую и черную квадратную плитку. Все зоны объединяют аксессуары черного цвета и черная дверь. . . В гостевом санузле на полу то же дерево, что и во всей квартире, - заказчики не побоялись такого решения. Плитка с красивой каменной текстурой здесь используется только в качестве декоративного акцента. Украшает комнату большая тумба с раковиной и зеркала с подсветкой. . . В продолжение темы бирюзы оформлена стена в прихожей. Здесь глубина этого цвета создает некоторую камерность помещения уже со своей индивидуальностью. Эту индивидуальность «делают» потрясающие обои «Майями», рисунок которых слегка ломает геометрию пространства и который можно рассматривать бесконечно. . . Квартира разделена на две зоны — общественную и приватную. В общественной зоне — входная группа, гостиная, кухня, гостевой санузел. В приватной — спальня, гардероб, ванная комната. . Островок покоя («Я хочу тишины и немного покоя...») . . .
22 фотографии






















