Проект "Кипр! Да будет цвет!
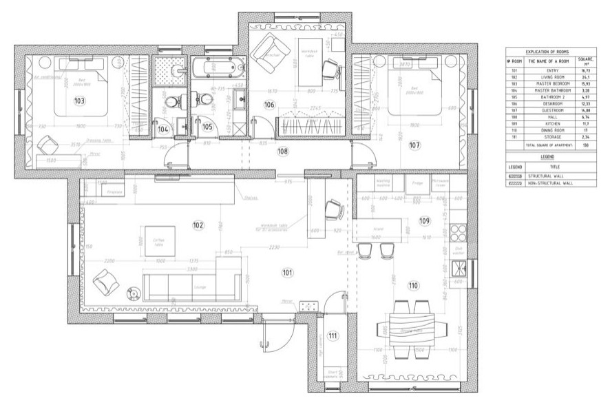
Этот дом на Кипре недалеко от Лимассола создавался для семейной пары с котом и собакой. Сначала хозяева хотели, чтобы интерьер был спокойным и светлым, но когда получили первые варианты такого декора, загрустили. Тогда мы добавили красок, темных, насыщенных оттенков, интересных акцентов и деталей, пространство сразу заиграло, а хозяева креатив одобрили. . . Прихожих в домах на Кипре обычно нет, поэтому при входе сразу попадаешь в просторную гостиную, она же кухня и столовая. Кроме того, здесь выделена зона для хобби хозяйки - она занимается фотографией и диджействует. Основным цветом гостиной выбрали глубокий серый. Его дополнил сочный, акцентный синий. В этот цвет выкрасили стены в обеденной зоне, он расширил пространство, сделал его глубже и интереснее. Тот же оттенок использовали для нижних фасадов на кухне. Во всем доме много дерева и натуральных материалов: большой обеденный стол из слэба, тот же слэб выбран для длинного стола в рабочей зоне гостиной. Декоративные элементы и аксессуары из меди и латуни добавляют шика и украшают интерьер. . . Один из моих любимых акцентов - мозаика на острове. Разные оттенки металла, глянцевые, брашированные и матовые, красиво переливается и сочетается с другими металлическими элементами интерьера, например, подвесами над столами. Латунные вставки присутствуют и в гостиной - потрясающая лампа и журнальные столики. Для текстиля на окнах и диванных подушек подобрали нежный, припыленный розовый. Таким же цветов обита часть стульев в обеденной зоне. Центральное место в гостиной занимает настоящий встроенный камин, который хозяева разжигают зимой, рядом с ним оборудована ниша для дров. Хотя камин отсылает к классическим интерьерам, в данном случае он идеально вписан в современный интерьер. . . Спальня. Настроение всей комнаты, ощущение свежести и моря, задает стена за изголовьем кровати потрясающего бирюзового оттенка, который мы очень долго искали. Стену украсили настоящей веткой причудливой формы, ее хозяева нашли на пляже неподалеку. Продолжая тему натуральности, вместо прикроватных тумбочек подобрали табуреточки-пеньки. . Текстиль на окнах природного бежевого оттенка хорошо сочетается с бирюзовой стеной, поскольку в ткани есть едва заметная бирюзовая нить. Потрясающий туалетный столик из натурального дерева привезли из Англии, а старинный стул к нему хозяева буквально подобрали на помойке, он так им понравился, что они его отреставрировали, обили заново, и он идеально вписался в интерьер. . . Вторая спальня. Отделка спальни выполнена в нейтральных, очень спокойных тонах: серо-бежевые, практически белые стены, серые фасады шкафов. А тон задает текстиль, поэтому настроение спальни легко поменять. Центральным элементом стали слегка блестящие шторы оттенка травы, этот же оттенок поддержан в рисунке ковра и цветом покрывала. Если эти элементы поменять, комната сразу будет выглядеть иначе. . . Акцент в ванной комнате сделали на эффектной цементной плитке очень красивого бирюзового оттенка в стиле пэчворк. Ее использовали для пола и также на стенах в зоне самой ванны. . . Площадь дома 130 кв.м., он разделен на приватную и общественную зоны. В общественной зоне находится большая кухня-столовая-гостиная с настоящим камином. В приватной зоне расположена спальня хозяев с собственной душевой, ванная комната, кабинет и гостевая комната - на Кипр к ним часто приезжают друзья и родственники. . .
22 фотографии






















