Проект "Аромат можжевельника и кофе"
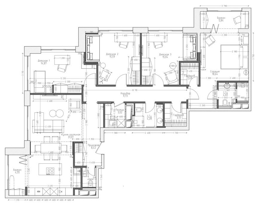
В этом проекте мы имели удовольствие работать с изначально удачной планировкой. Квартира общей площадью 135 квадратных метров с логичным зонированием и обилием естественного света станет домом для семьи, в которой подрастают трое детей. Простота и четкость линий и форм, скрытый функционал, натуральность и естественность материалов, фактур и цветов - это то, что по желанию заказчиков, в целом определило общую концепцию проекта. . . В семье наших заказчиков подрастают трое детей, которые благодаря удачной планировке квартиры могут быть обеспечены отдельными пространствами. Детские комнаты в целом схожи по наполнению и оформлению и предусматривают все необходимое для учебы, игры и отдыха. . Комнаты мальчиков выглядят спокойно за счет сдержанного цветового решения и довольно минималистично за счет отсутствия мелких деталей. Но как еще должно выглядеть жилище подрастающих мужчин? В качестве основных декоративных акцентов мальчишкам предложен необычный настенный декор в виде светящихся неоновых знаков, символизирующих победу и рождение идей. . . Главным акцентом в комнате дочери заказчиков, несомненно, является оформление спальной зоны. Над мягким изголовьем кровати будто раскинулось небо, усыпанное звездами, глядя на которые маленькая хозяйка этой комнаты сможет мечтать и загадывать желания. Ненавязчивый серый цвет штор, припыленный розовый цвет оформления кровати и, конечно, люстра-облако, которую невозможно не заметить, в общем, создают приятное, обволакивающее впечатление. . . Спальня хозяев находится в дальней части квартиры, что обеспечивает ей должную приватность. Оформление этой комнаты исполнено в рамках общей концепции интерьера и, следовательно, предполагает активное использование натуральных, природных материалов. Стена за изголовьем кровати отделана чередующимися панелями из камня и зеркал, что создает ощущение наполненности воздухом и светом. В отделке противоположной стены мы использовали деревянные панели различной геометрической формы, которые разместили нетривиально, разориентировав направление текстурного рисунка. . На лоджии организована небольшая рабочая зона для хозяина квартиры, стена здесь отделана декоративной штукатуркой с уникальным абстрактным рисунком. . . Попадая в основную часть дома, мы понимаем, что находимся в его сердце, центре притяжения для всех членов семьи и их гостей. Эта часть квартиры логично поделена на три основных зоны: гостиную, столовую и кухню и с точки зрения оформления задает общий тон и настроение для всего дома. Стены и шторы, диван и стулья окрашены в различные оттенки кофе и создают непередаваемую атмосферу тепла и уюта. Здесь мы не отказали себе в удовольствии активно использовать дерево и камень в качестве основных материалов. Функциональная часть кухни, практически полностью скрытая за деревянными фасадами, выглядит минималистично и выступает фоном для главного акцентного объекта этой зоны - кухонного острова. Мягкое желтое свечение декоративной части острова, легкая люстра с латунными деталями, практически невесомый за счет тонких металлических ножек обеденный стол, создают приятную обстановку и располагают как к тихим семейным ужинам, так и веселым посиделкам в компании друзей. . . Задумывая оформление детского санузла, мы решили немного снизить уровень серьезности и слегка пошалить. Два круглых зеркала, симметрично расположенных над раковинами, навели нас на мысль о... велосипеде! и хозяева квартиры с радостью поддержали эту идею. Кроме того, здесь мы создали небольшой тропический уголок, отделав душевую плиткой с активным растительным рисунком. . . Оформление санузла хозяев квартиры поддерживает общую идею проекта. Стены в основном отделаны керамогранитом с древесной текстурой. В отделке пола использован керамогранит с невероятным по красоте рисунком, имитирующим срез камня. Темные, матовые элементы и фурнитура использованы нами в качестве акцентов и добавляют немного глубины и ощущения законченности картины в целом. . . Гостевой санузел мы оформили довольно просто в общей цветовой гамме проекта. Главным предметом рассмотрения здесь, пожалуй, является интересный оптический эффект, созданный геометрическим рисунком плитки. . . Прихожая оформлена лаконично и за счет наличия закрытых шкафов и минимума открытых поверхностей исключает возможность возникновения визуального шума, тем самым словно упорядочивает пространство и приглашает, не задерживаясь, пройти в основную часть квартиры. . . В этом проекте мы имели удовольствие работать с изначально удачной планировкой. Квартира общей площадью 135 квадратных метров с логичным зонированием и обилием естественного света станет домом для семьи, в которой подрастают трое детей. Простота и четкость линий и форм, скрытый функционал, натуральность и естественность материалов, фактур и цветов - это то, что по желанию заказчиков, в целом определило общую концепцию проекта. .
32 фотографии
































