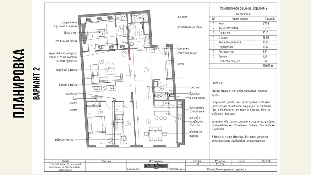
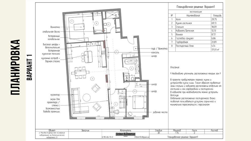
Проект концепция
Данный проект был разработан, как предложение стилистического решения квартиры с не удачной планировкой от застройщика.
Год реализации: 2019
г. Москва, Центральный административный округ
14 фотографий
Данный проект был разработан, как предложение стилистического решения квартиры с не удачной планировкой от застройщика.
14 фотографий
