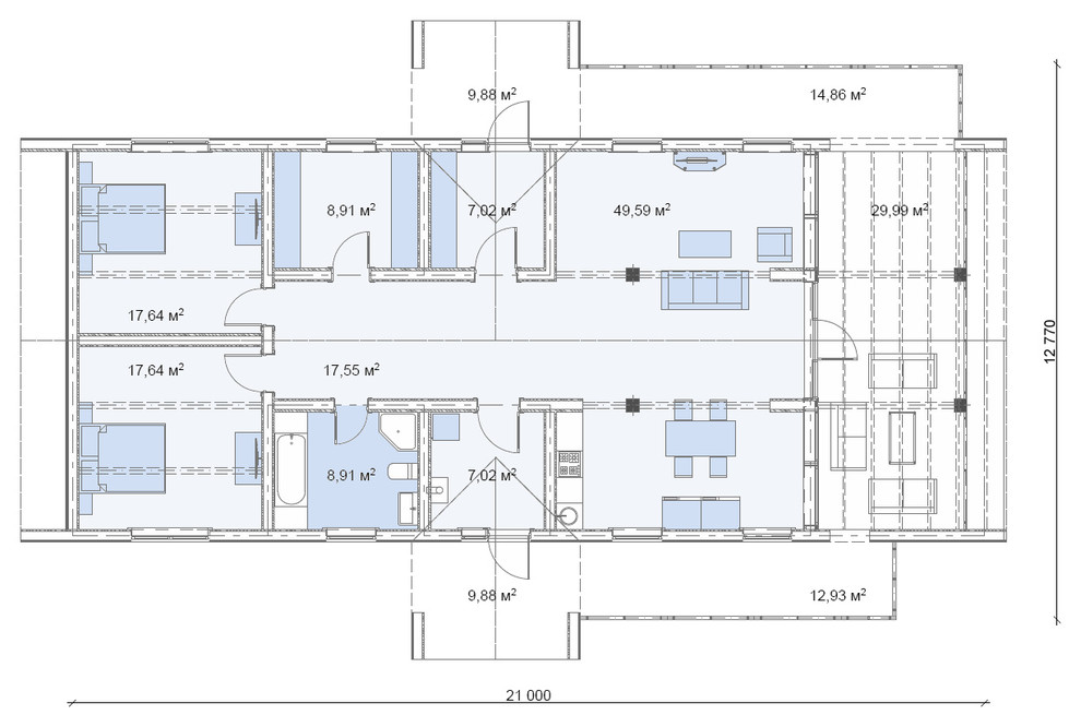
Проект дома "Крон"
Один из немногочисленных проектов каркасных домов. На вид простой и сложный одновременно, он выполнен с учетом перепада участка. . . Планировка строгая и лаконичная, не имеет ничего лишнего. Проще, чем сам дом кажется на первый взгляд. Эта легкость подчеркивается подвесной наружной террасой, которая как бы парит над землей. . . Довольно необычный проект, который точно будет выделятся на фоне других.
Год реализации: 2018
3 фотографии




