Проект "Берлинский флешбэк"
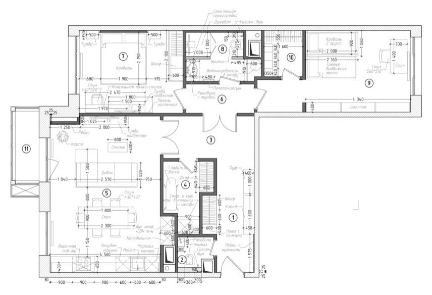
Главное желание заказчиков относительно оформления квартиры заключалось в том, чтобы получить спокойный и выдержанный интерьер в нейтральной цветовой гамме. . . Осуществление зонирования помещения, объединяющего кухню и гостиную, с точки зрения эргономики не потребовало от нас больших усилий и креатива, все сделано логично и удобно для жизни. Рабочую поверхность кухни я разместила в одну линию, скрыв за белыми гладкими фасадами практически всю систему хранения и сделав акцент на верхних шкафах - они закрыты деревянными фасадами и немного утоплены вглубь. . . Гостиная также обустроена логично и предусматривает стандартный набор вещей для отдыха в мягкой зоне. Здесь я интересно оформила стену за ТВ, отделав ее декоративной штукатуркой графитового цвета и деревянными рейками. . В целом я получила помещение, которое выглядит стильно и минималистично, как этого требует концепция проекта, но мне очень захотелось разбавить эту брутальную картинку чем-то легким, изящным, возможно даже слегка ироничным и хозяева с удовольствием пошли нам на встречу. Так родилась идея разместить над тяжелым и массивным обеденным столом люстру сложной, классической формы в неожиданном исполнении - она сделана из черного полупрозрачного пластика. А белое кашпо в форме мужской головы - это же просто находка! Но основным объектом притяжения взгляда здесь, конечно, является стена с необыкновенной по красоте росписью, на которой изображен вид на Берлинский кафедральный собор. Зная, что наши заказчики жили в Берлине и горячо полюбили этот город, мне захотелось сделать что-то, что позволило бы им окунуться в приятные воспоминания. . . В оформлении спальни я использовала чистые линии и строгие геометрические формы, нейтральные и спокойные цвета и фактуры. Стена за изголовьем кровати украшена огромной росписью, которую со временем при желании можно заменить на любой другой декораторский объект, что позволит практически полностью изменить настроение помещения. Роспись, выполненная точно над изголовьем, идентичные тумбочки и одинаковые настенные бра вносят ощущение равновесия, гармонии и покоя. По просьбе заказчиков на противоположной стене мы предусмотрели телевизор, который постарались скрыть, разместив его на практически черном фоне. . . Детская. Создавая интерьер этой комнаты, я работала над решением нестандартной задачи. Это помещение должно стать рабочим кабинетом для хозяина квартиры и в тоже время несколько раз в год превращаться в детскую комнату для трех девочек. Я постаралась сделать это пространство максимально функциональным и универсальным и решила избежать чисто девичьей стилистики, используя простые, четкие линии и глубокий синий цвет в предметах мебели и в оформлении стен. Для организации удобной рабочей зоны у окна разместился письменный стол, вдоль стены - вместительные стеллажи. Для девочек я задумала двухъярусную кровать с выдвижным нижним ящиком, превращающимся в третье спальное место. Латунная фурнитура кровати, изящная люстра, расположенная в спальной зоне, и симпатичные текстильные детали по задумке создадут необходимый уют и комфортную обстановку для девочек. . . Ванная комната. Мрамор и материалы, имитирующие мрамор, солируют в оформлении ванной комнаты. Этот материал настолько красив и самодостаточен, что совершенно не требует дополнительного украшательства. Чтобы создать контраст, который позволит мрамору проявить себя еще активней, стену за ванной я отделала плиткой с геометрическим рисунком. Элементы мебели здесь просты и функциональны, отсутствуют мелкие детали и излишний декор, в общем, все работает на визуальное наслаждение природной красотой мрамора. . . Прихожая. В прихожей я решила предусмотреть довольно вместительный шкаф, поэтому мне пришлось немного изменить планировку. Это с одной стороны придало помещению правильную форму, а с другой сделало его длинным и узким. Чтобы визуально немного расширить пространство я использовала пару удачных, на мой взгляд, приемов. Легкая деревянная конструкция из реек и темная открытая полка шкафа на светлом фоне зрительно несколько разбивают пространство и прихожая уже не выглядит скучным, узким вагончиком. Ну, и зеркала. Это всем известный беспроигрышный прием. В оформлении пола входной зоны использована плитка с кантом по периметру. Эта же плитка с геометрическим рисунком переходит в гостевой санузел, объединяя помещения общественной зоны.
27 фотографий



























