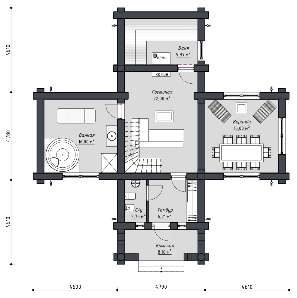
Проект бани из сруба алтайского кедра|94 м2|Воронежская обл.
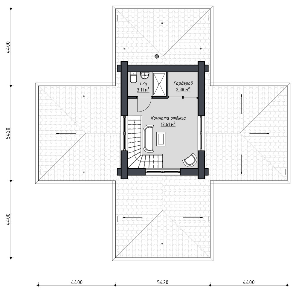
Проект комфортной двухэтажной бани в форме креста из сруба с просторной верандой и камином.
Год реализации: 2020
4 фотографии
Проект комфортной двухэтажной бани в форме креста из сруба с просторной верандой и камином.
4 фотографии
