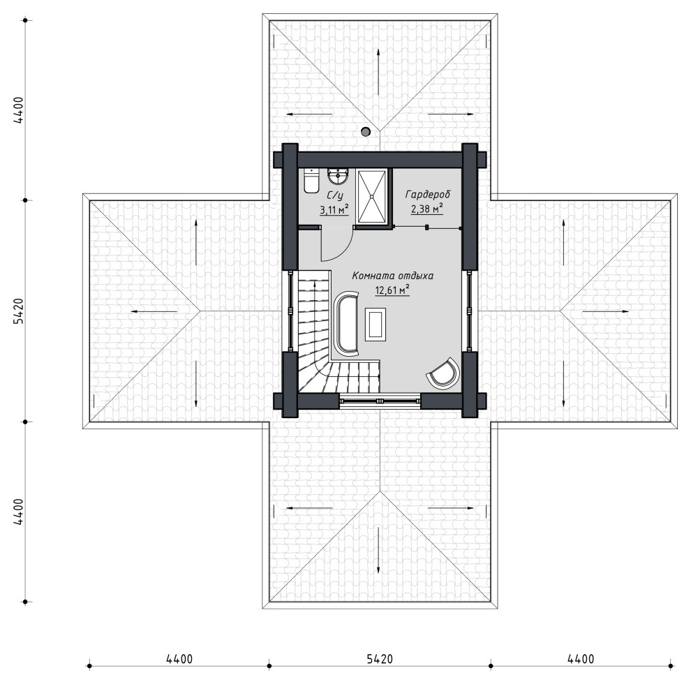
Планировка бани

Другие фотографии в проекте Проект бани из сруба алтайского кедра|94 м2|Воронежская обл.

Планировка бани
Баня из сруба
Баня из сруба

Вопросы к фото 0

Задайте вопрос

Вам ответят эксперты. Пришлем уведомление, когда вам ответят

Архитектор Воронеж, Архитектура, Контемпорари, архитектор москва, воронеж, дизайн, дизайнер воронеж, проект бани, проект дома, проектирование, проектирование Москва, проектирование воронеж, проектирование домов, строительство

Юлия

Юлия

Архитекторы

Смотреть профиль

0

отзывов

0

Рейтинг

Проект бани из сруба алтайского кедра|94 м2|Воронежская обл.

Проект комфортной двухэтажной бани из сруба алтайского кедра с просторной верандой и камином.

Вопросы к фото 0