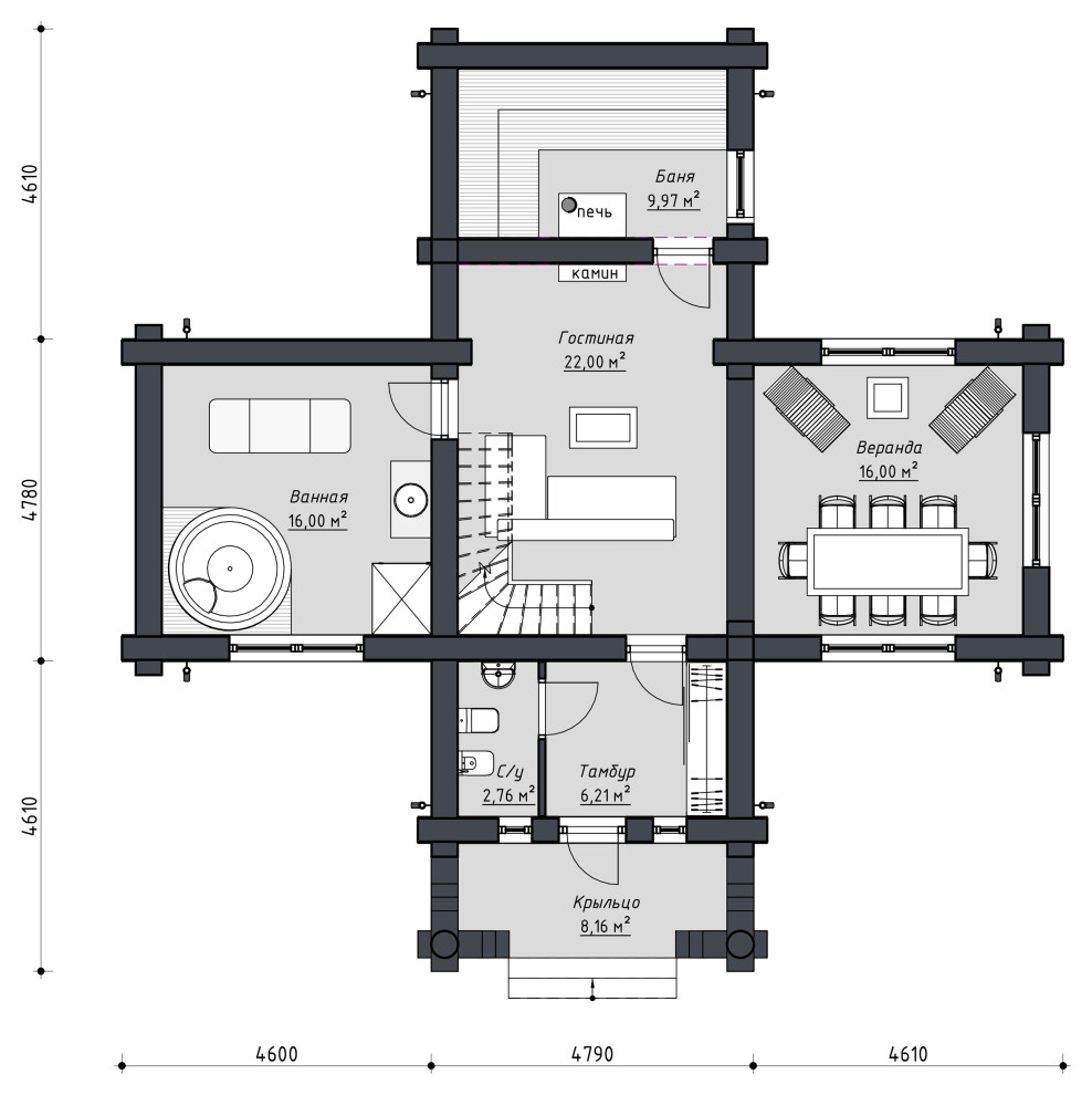
Планировка бани
Юлия

Юлия

Архитекторы

0

Проект бани из сруба алтайского кедра|94 м2|Воронежская обл.

Проект комфортной двухэтажной бани из сруба алтайского кедра с просторной верандой и камином.

Другие фотографии в проекте

Баня из срубаБаня из срубаПланировка бани

Вопросы к фото 0

Задайте вопрос

Вам ответят эксперты. Пришлем уведомление, когда вам ответят