Проект гостевого дома с баней|108 м2|Московская обл.
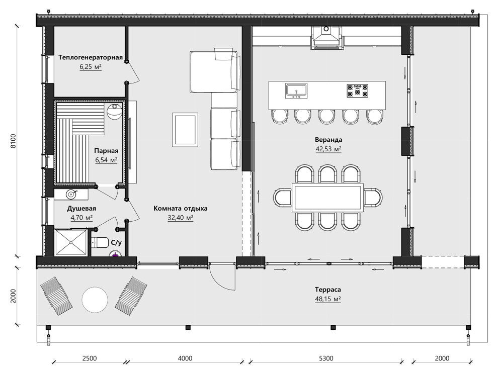
Гостевой дом с баней выполнен в классическом стиле Barnhouse. Несмотря на простоту конструкции, строения, построенные в этом стиле, выглядят достаточно привлекательно и прекрасно гармонируют с природными ландшафтами.
г. Москва, Новомосковский административный округ
2 фотографии



