Проект гостевого дома с баней

Другие фотографии в проекте Проект гостевого дома с баней|108 м2|Московская обл.

Проект гостевого дома с баней

Вопросы к фото 0

Задайте вопрос

Вам ответят эксперты. Пришлем уведомление, когда вам ответят

Архитектор Воронеж, Контемпорари, Москва, Проекты домов, архитектор Липецк, архитектор москва, дизайн Липецк, дизайн интерьеров, дизайн москва, дизайнер воронеж, проект дома под ключ, проект одноэтажного дома, проект частного дома

Юлия

Юлия

Архитекторы

Смотреть профиль

0

отзывов

0

Рейтинг

Проект гостевого дома с баней|108 м2|Московская обл.

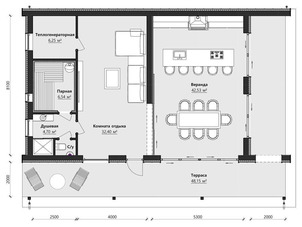
Гостевой дом с баней выполнен в классическом стиле Barnhouse. Несмотря на простоту конструкции, строения, построенные в этом стиле, выглядят достаточно привлекательно и прекрасно гармонируют с природными ландшафтами.

Вопросы к фото 0