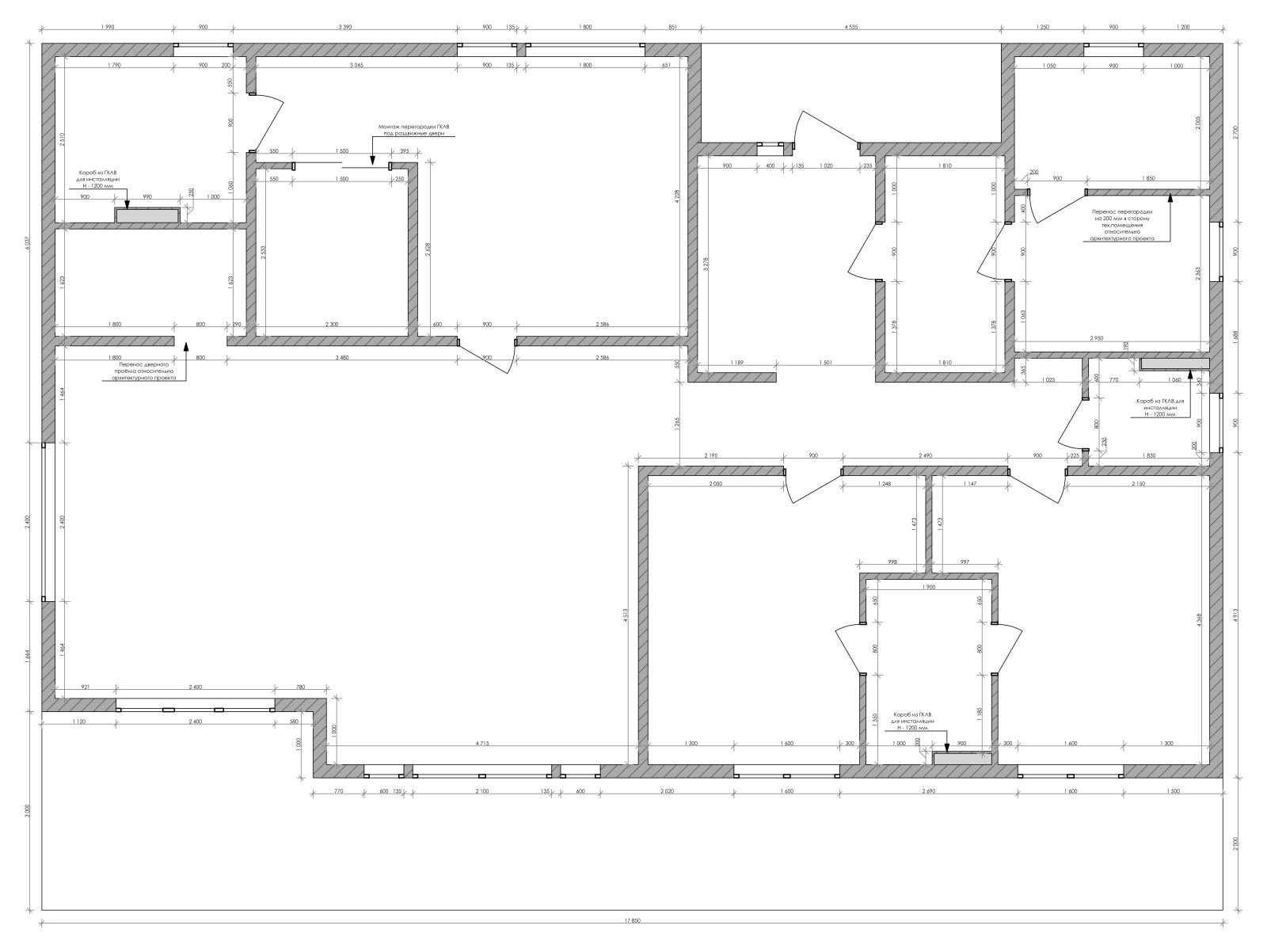
Планировочное решение дома 167 кв.м
Одноэтажный дом 167 кв.м. в Красной Поляне. Это проект "Планировочное решение + электрика" - отличный вариант для тех, кому нужно срочно начинать ремонт и кто хочет сэкономить на полном проекте с эскизами и коллажами. Планы, которые необходимы каждому, кто планирует входить в стройку без лишних нервов.
Год реализации: 2022
Стоимость проектирования: 135 000 ₽
4 фотографии




