PEREDELKINO
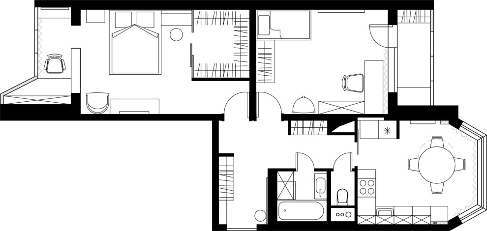
Проектирование квартиры с типовой планировкой - это всегда непростая задача. Наши клиенты, молодая пара с маленьким ребенком. Им хотелось бы получить современную квартиру с большим количеством мест для хранения, рабочим пространством. . . В прихожей спроектировали шкаф насыщенного бордового цвета, рядом расположена консоль, декорированная деревянными рейками. На противоположной стене разместилось большое зеркало с парящей подсветкой. Пространство коридора обыграно цветовыми решениями: одна стена выполнена в светло-сером цвете с установленными белыми дверями в скандинавском стиле, другая стена белого цвета в современном стиле. Двери в санузел и ванную установили скрытого типа, окрашенные в цвет стены. В качестве основного освещения на потолке применена световая линия, визуально отделяя прихожую и коридор. . . Кухня выполнена в классическом варианте. Верхние шкафы кухонного гарнитура расположены только по одной стене, при этом нижняя часть выполнена в Г- образной форме. Фартук и стена рядом выложены большеформатной керамической плиткой, стилизованной под натуральный камень. Ярким элементом является открытая вытяжка в виде трубы бронзового цвета. У окна установлена стеклянная витрина с подсветкой. Мебель выбрана песочного цвета в контрасте со шпоном цвета темного ореха. Дверь в коридор открывается с помощью системы призрак (Gost): дверное полотно помещается в нишу, оборудованную между шкафами со встроенной техникой и стеной. Часть стены, отведенная под ТВ зону, задекорирована 3D панелями, металлическими молдингами черного цвета и световой линией. В центре разместили большой круглый стол, освещение над которым выполнено с помощью бронзовых свесов. . . Спальня выполнена в светлых тонах. В качестве декора использованы молдинги, 3D панели и вставки из бесшовных фотообоев с абстрактным рисунком. Гардеробную отделили раздвижной металлической перегородкой с затемнённым остеклением. Лоджию объединили с общим пространством спальни и разместили на ней рабочее место. . . УЛ. САМУИЛА МАРШАКА / МОСКВА / 67 м2 / 2021
17 фотографий


















