TRINITY 43
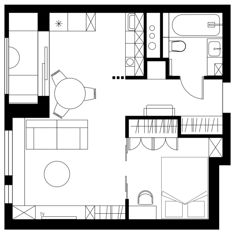
Заказчица данного проекта, молодая девушка, поставила перед нами задачу объединить гостиную с кухней. В связи с тем, что квартира небольшая, необходимо было избежать ощущения "жизни на кухне", чтобы зона приготовления пищи не была центром квартиры, вокруг которого существует остальное пространство. Поэтому необходимо было выбрать место для кухни, совмещенной с гостиной, но не просматриваемой с любой точки квартиры. . . Было найдено решение немного передвинуть зону готовки, организовав для нее нишу. Деревянные стойки и затемненная кухонная зона позволили отделить пространство гостиной от кухни. . . Спальню изолировали стеклянной перегородкой, что позволило обеспечить естественное освещение и увеличить пространство гостиной. При этом в спальне удалось разместить туалетный столик, шкафы и прочие места хранения. . . Акцентами гостиной стал большой функциональный шкаф у телевизора, а также подоконник, объединяющий два окна, что позволило организовать дополнительные места отдыха. . . Квартира выполнена в современном стиле, с использованием контраста светлых полов и стен с темной мебелью. . . ЖК ТРИНИТИ / МОСКВА / 43 м2 / 2022
13 фотографий














