SILVER PARK
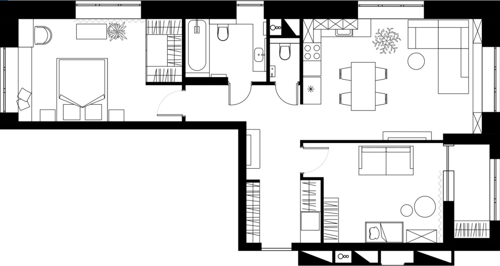
При создании данного проекта необходимо было создать интерьер из натуральных материалов с добавлением ярких акцентов. . . Было решено отказаться от свисающих осветительных приборов в зоне обеденного стола, что позволило при необходимости свободно перемещать его. В качестве освещения применили трековые светильники, установив их в потолочные балки. Таким образом, визуально отделили пространство гостиной от кухни. . . В зоне гостиной установили модульный диван, который расположился рядом с большим окном, отделанным гипсовым кирпичом и оборудованным большим подоконником. Это создало уютную атмосферу для отдыха. Дополнительным бонусом стала система хранения. . . Спальня спроектирована в едином стиле с кухней — гостиной. В качестве отделки в изголовье кровати создали уникальный орнамент из молдингов, часть стены затемнили декоративной штукатуркой. У окна спальни установили рабочий стол и подоконник, аналогично гостиной. За раздвижной реечной перегородкой скрыта вместительная гардеробная. . . Стены детской комнаты оформлены в нежно-розовых тонах с яркими акцентами в виде фотообоев с милыми лисичками и диваном кораллового цвета. . . Используя конструктивные возможности квартиры, удалось создать просторную ванную комнату с окном. Предпочтение было отдано этническому стилю с характерными узорами, оттенками и материалами. На столешницу из деревянного слэба установлена каменная раковина. Стена напротив двери выложена плиткой изумрудного цвета. . . Общий стиль проекта лофт с мягкими оттенками и яркими акцентами в деталях. . . ЖК СЕРЕБРЯНЫЙ ПАРК / МОСКВА / 80 м2 / 2021 .
31 фотография
































