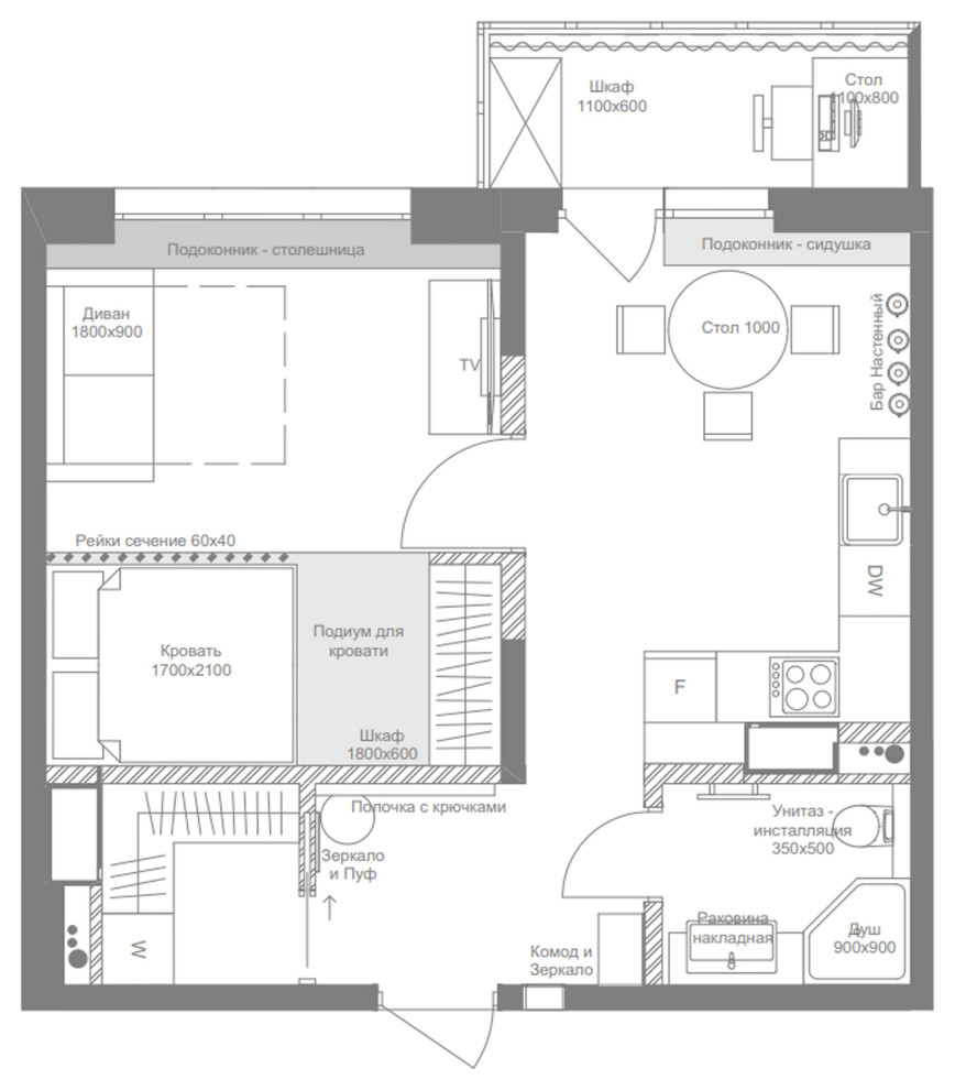
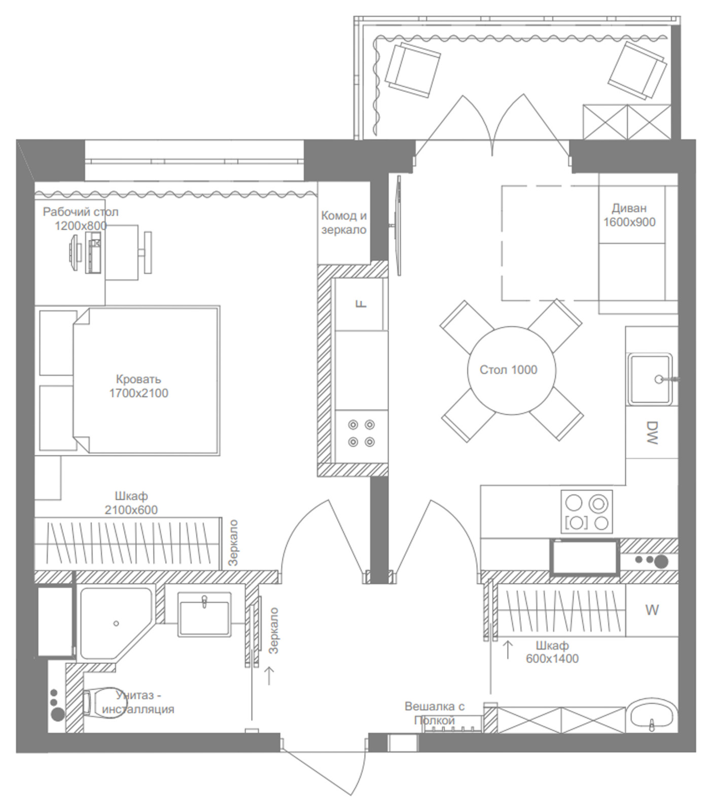
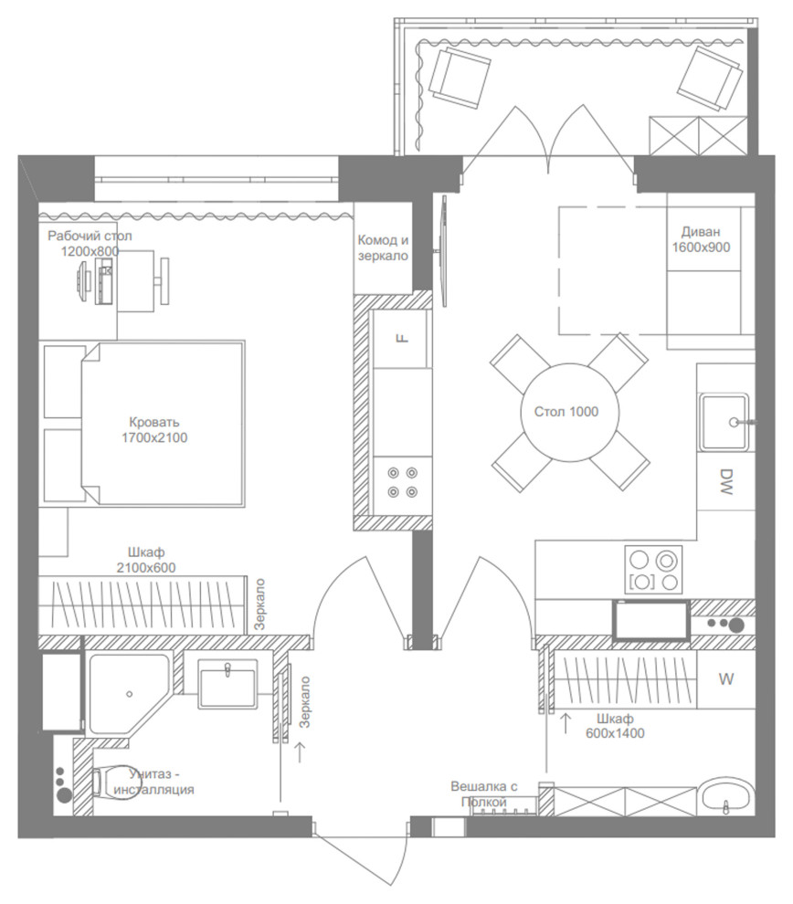
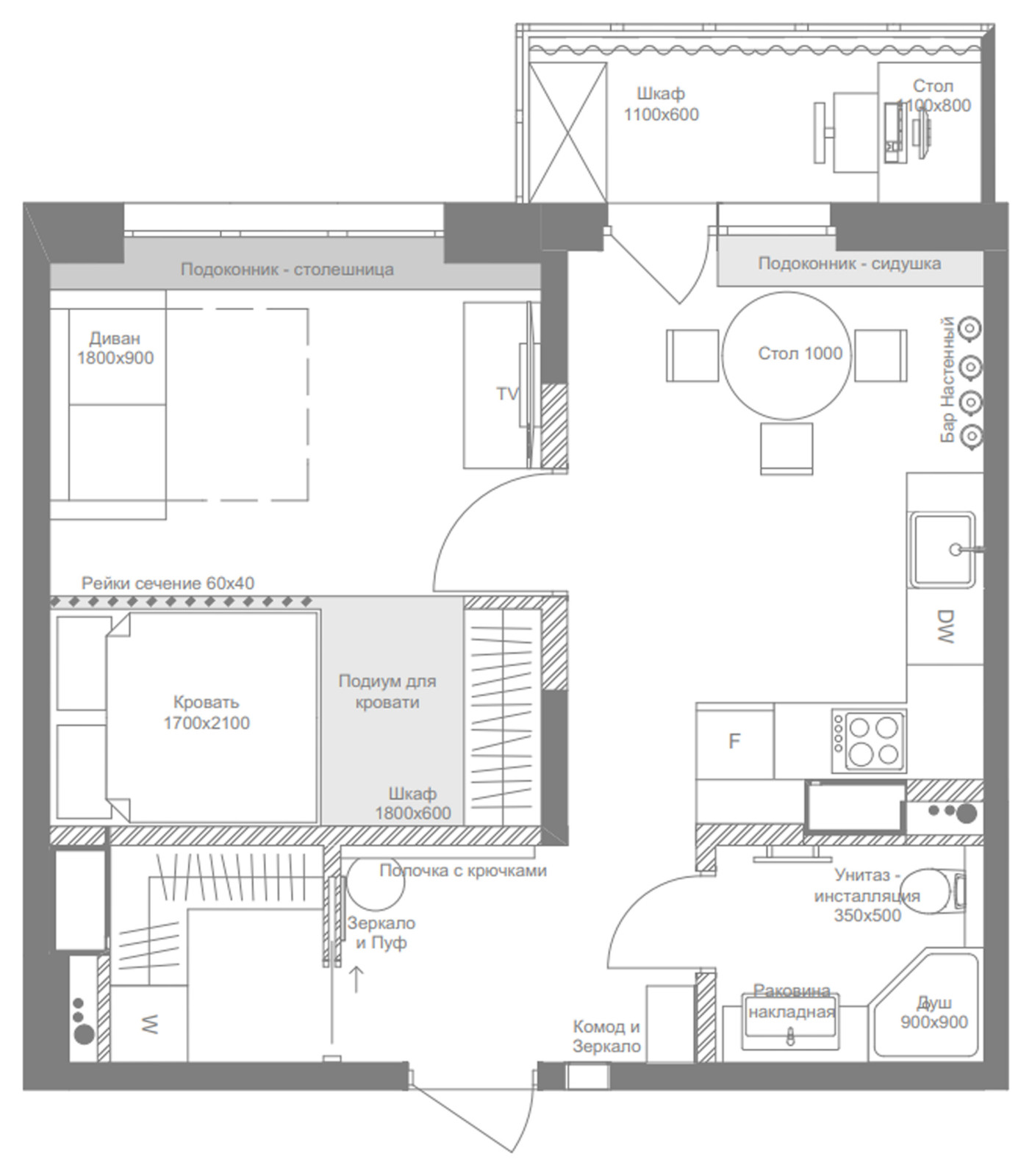
Профиль пользователяМаленькая Квартира для Молодой ДевушкиГод реализации: 2021Стоимость проектирования: 525 000 ₽г. Санкт-Петербург13 фотографийПоделитьсяСохранитьКухня-ГостинаяПоделитьсяСохранитьКухня-ГостинаяПоделитьсяСохранитьКухня-ГостинаяПоделитьсяСохранитьКухня-ГостинаяПоделитьсяСохранитьРабочая зонаПоделитьсяСохранитьСпальняПоделитьсяСохранитьСпальняПоделитьсяСохранитьРабочее местоПоделитьсяСохранитьПрихожаяПоделитьсяСохранитьКоридорПоделитьсяСохранитьПланировка 2ПоделитьсяСохранитьПланировка 1ПоделитьсяСохранитьПланировка 3. ФинальнаяПоделитьсяСохранить