
Дизайнеры интерьера
5
·
10 отзывов
Маленькая Квартира для Молодой Девушки
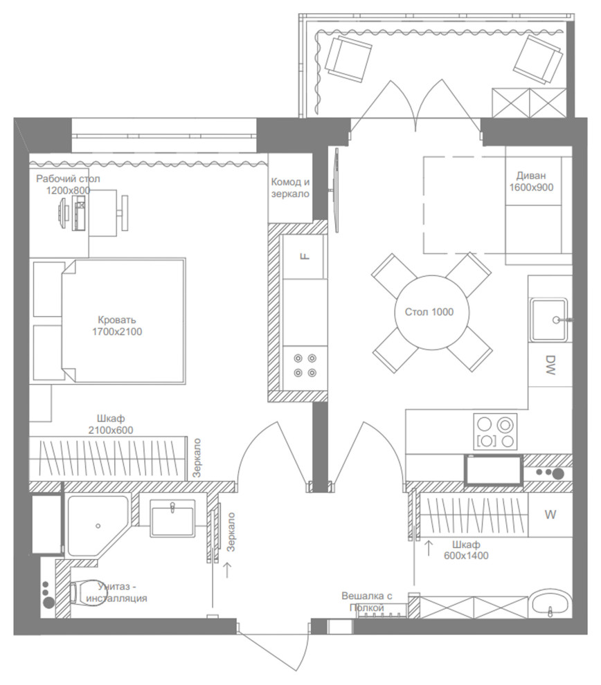
Планировка 2. Поиск планировки - самый, пожалуй, важный этап всего проекта. Следуя за привычками хозяйки дома - отдыхать в процессе готовки - одним из вариантов планировки сталвариант большой функциональной кухни. Даже в небольшой квартире это всегда реализуемо.
Другие фотографии в проекте
Вопросы к фото 0
Задайте вопрос
Вам ответят эксперты. Пришлем уведомление, когда вам ответят




