logo
Фоновое изображение профиля Полина Триандофилиди

Полина Триандофилиди

Дизайнеры интерьера

Отзывы о: Полина Триандофилиди 1

5

1 отзыв

Качество работы

5.0

Коммуникация

5.0

Стоимость

5.0

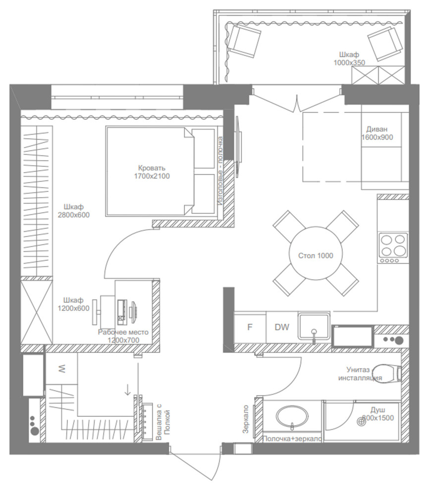
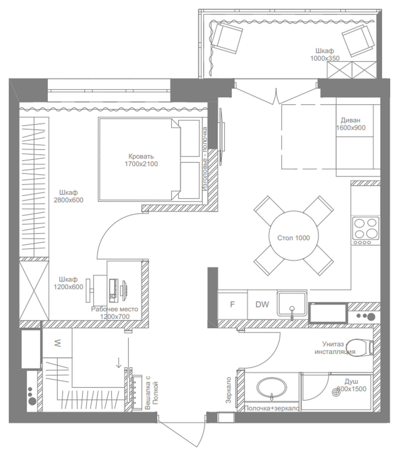
Если кратко: . Полину нашел через друзей, и сказать, что повезло, мало. Моя хорошая подруга в то же самое время делала ремонт во всей квартире, конечно и бюджет у меня был в разы меньше, но мы много общались о наболевших проблемах, то есть есть с кем сравнивать. . . Если не кратко: . В конце лета у меня прорвало трубу в санузле. Ремонт канализации и теплосетей был необходим, а вместе с тем было принято решение, бюджетно, на сколько это возможно, обновить и всю ванну. Очень скрупулёзно выбирал подрядчика, на замер было приглашено около 10 фирм разной ценовой категории, многие предлагали сделать дизайн проекта у них, но заказал я его, все-таки, именно у Полины и слава богу. . Дизайн проекта был сделан раньше первого визита прораба, хотя первый звонок дизайнеру и строительной фирме делал примерно в одно и то же время. Кроме того, Полина предложила несколько вариантов дизайна, с расписанными ценами на материалы в каждом из них и ссылками на поставщиков, с артикулами материалов! То есть я просто сказал, что мне нужно и потом выбирал, то что понравилось уже зная порядок цен на материалы. . Не мало важно заметить, что квартира находится в доме старой застройки, кухня перенесена, стояк воды один, канализационных сливов два, стоит газовая колонка. В общем с технической стороны переработать план сетей в квартире не самая простая задачка) . Но вот дизайн проекта на руках, и казалось бы работа выполнена, но дизайнер согласилась на авторский надзор проекта. А это очень круто, так как в процессе ремонта все что может пойти не так, обязательно пойдет, и кому-то придется решать эти проблемы, главное чтоб не мне)). А Полина, правда чувствует ответственность за свой проект и умеет общаться с прорабом и рабочими, не надо играть в сломанный телефон! Дизайнер появлялась на месте ремонта соизмеримое кол-во раз с прорабом. . В целом я долго могу писать где и как она молодец. Но не надо думать, что ремонт это приятное занятие, просто он был не таким ужасным с этим специалистом.

30/Март/2021

Об эксперте

Об опыте

Я - дизайнер с 8-ми летним опытом работы с реальными объектами. Свою карьеру начинала в крупных мировых компаниях на позициах Дизайнера, Декоратора и Архитектора магазинов, бутиков, крупных мероприятий. Последние пару лет занимаюсь фриланс проетами жилых пространств - студии, квартиры, дома. https://www.psinteriors.net/o-nas

Категории специализации

Архитекторы, Гардеробные и кладовые комнаты, Декораторы и стилисты интерьера, Детские и пеленальные, Дизайнеры интерьера, Проектирование и строительство

Ценовой сегмент: ₽₽₽

Услуги

Дизайн интерьера

Консультация по цвету

План дома

План этажа

Планировка пространства

Подбор мебели

Альбомы идей 1

Мои идеи

Идей: 2

Фоновое изображение профиля Полина Триандофилиди
Фото профиля Полина Триандофилиди

Полина Триандофилиди

Дизайнеры интерьера