
Дизайнеры интерьера
5
·
10 отзывов
Маленькая Квартира для Молодой Девушки
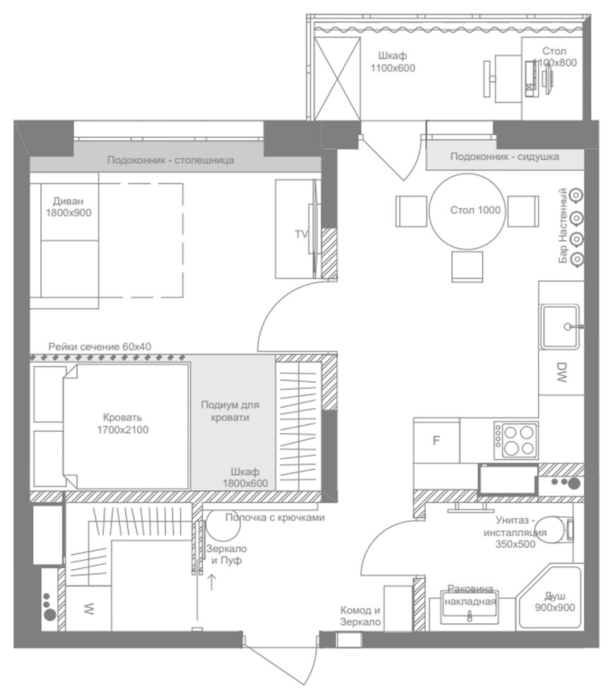
Планировка 1. Первой идеей было максимальное расширение зоны кухни-гостиной. Заказчица сразу обозначила, что спальня ей нужна только для того, чтобы спать - много места на нее она отдавать не хотела.
Другие фотографии в проекте
Вопросы к фото 0
Задайте вопрос
Вам ответят эксперты. Пришлем уведомление, когда вам ответят




