Квартира на Белорусской
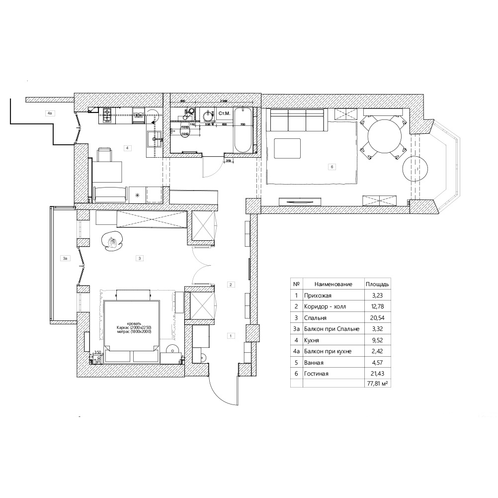
Мы создали современный интерьер в старом фонде, сохранив и планировку, и лепной декор, и атмосферу. Визитной карточкой проекта стали сложные цвета: шалфейный, терракотовый, лососевый КЛЮЧЕВАЯ ЗАДАЧА Двухкомнатная квартира с потолками около 3,3 метров находится в доме 1949 года постройки. Квартира, с которой нам предстояло работать – в сталинском доме и с собственной историей: важно было сохранить ощущение старомосковского жилья, но сделать его стильным и функциональным. Хозяйка, молодая успешная женщина, любит цвет, поэтому в интерьере требовалось сочетать несколько глубоких, выразительных оттенков. КАК МЫ РЕШИЛИ ДАННУЮ ЗАДАЧУ? Квартира находится в доме 1949 года постройки. Отделка была в ветхом состоянии, однако мы поняли, что исторические карнизы и потолочные розетки можно отреставрировать. Не удалось сохранить лепнину только в коридоре, поэтому под потолком мы добавили высокий карниз и выделили его цветом: тёмный кант создаёт более графичный и современный образ. Для гостиной выбрали гамму на основе шалфейного оттенка: хозяйка любит комнатные растения, которые задали мотивы Urban Jungle в интерьере. Спальня, кухня и санузел – тоже яркие: каждому помещению достался свой основной цвет. ПЛАНИРОВКА ПРОЕКТА У квартиры изначально была хорошая планировка – с двумя изолированными комнатами, уютной кухней и окнами на две стороны. Чтобы не повредить лепнину, мы почти не меняли границы помещений. Перепланировка коснулась лишь мокрых зон: мы объединили ванную и туалет. Кроме того, решили избавиться от двери между коридором и гостиной, чтобы в проходную зону проникало больше естественного света. ОСОБЕННОСТИ ДАННОГО ПРОЕКТА В эркере в гостиной появился зимний сад – одна из главных фокусных точек всего интерьера. Благодаря несущей балке нам удалось смонтировать крючок для круглого подвесного кресла. Некоторые предметы владелица перевезла из прежней квартиры, поэтому новую мебель мы подбирали так, чтобы она хорошо сочеталась с существующей. Тумбы в спальню изготовили на заказ, чтобы они визуально не спорили с купленными ранее стеллажами. Встроенную мебель сделали по эскизам архитекторов в столярной мастерской, мягкую – подобрали у российских производителей. В кухне мы использовали смелое сочетание горчичных стен и изумрудных фасадов. Активный принт на полу помог «собрать» воедино все оттенки. Чтобы подчеркнуть характер интерьера вне времени, в деталях мы добавили латунь: она присутствует в фурнитуре, смесителях, светильниках. Ознакомиться с проектом можно по ссылке: https://agcarton.com/belorusskaya
15 фотографий
















