Комната: кухня, гостиная и спальня - ремонт для телепроекта
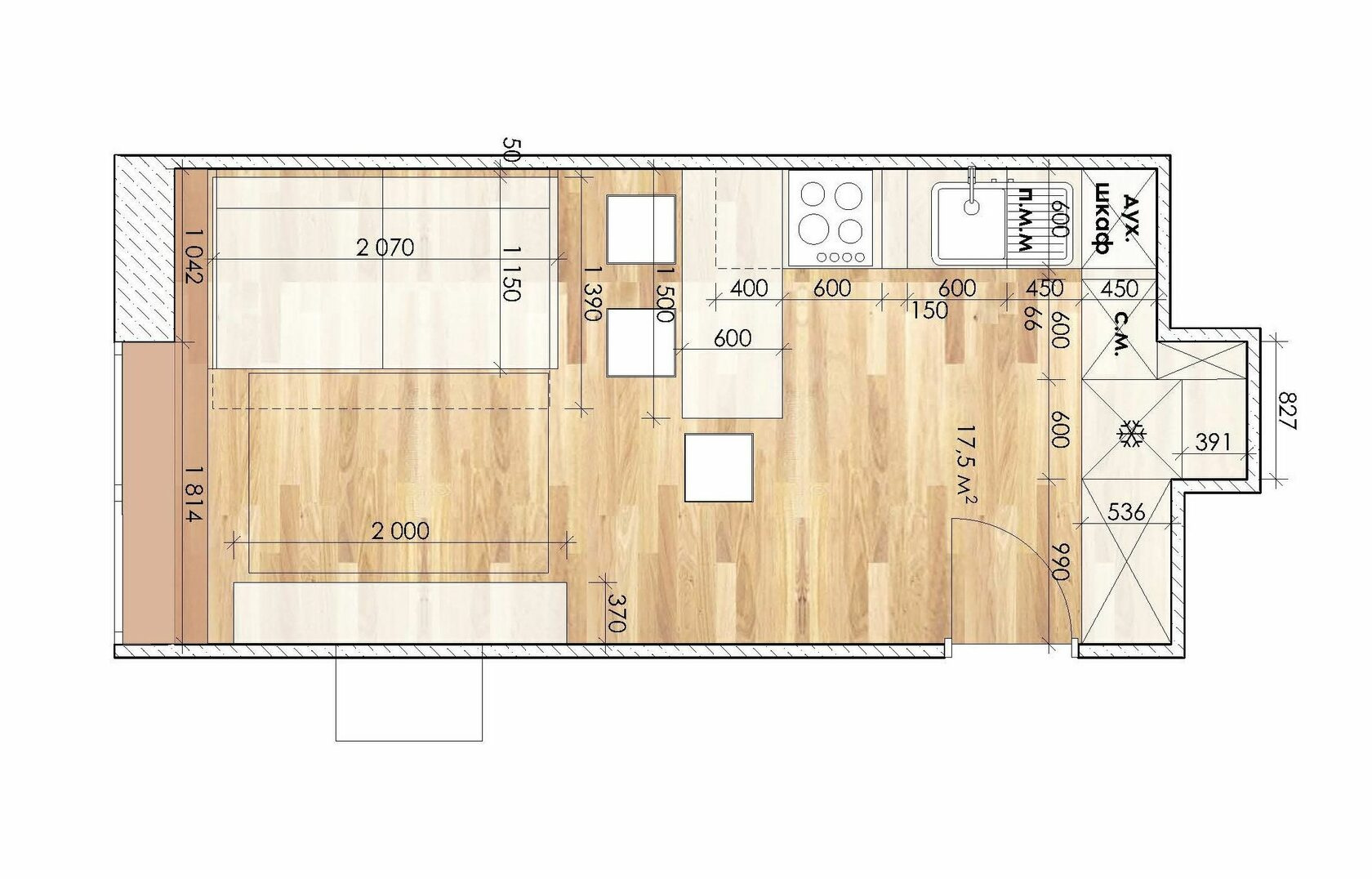
На телеканале «Россия–1» вышел выпуск программы «Большие перемены» с нашим участием. В течение нескольких месяцев мы занимались преображением интерьера, участвовали в съёмках, организовали мастер-класс по созданию декора ручной работы — а в итоге создали многофункциональное пространство, которое служит владельцам и кухней-гостиной, и спальней. КЛЮЧЕВАЯ ЗАДАЧА Комната, которую мы преобразили в рамках программы «Большие перемены» на «России–1», решает в квартире героев самые разные задачи: это и кухня-столовая, и гостиная, и спальня для хозяйки. Для нас было важно гармонично распорядиться небольшим пространством, чтобы вписать все функциональные зоны, а также вдохнуть в интерьер новую жизнь — словом, инициировать те самые большие перемены, которые требовались владельцам квартиры. КАК ЖЕ МЫ РЕШИЛИ ДАННУЮ ЗАДАЧУ? Чтобы разместить в одном пространстве так много функциональных зон, мы использовали несколько приёмов. Например, заменили обеденный стол компактной стойкой: она завершила линию кухонного гарнитура, очертила границы зоны. Все высокие шкафы расположили вдоль торцевой стены: в правой части конструкции — системы хранения для личных вещей, в левой — кухонное хранение. В гостиной предусмотрели ТВ-зону и добавили функциональный подоконник, а также диван-книжку, который раскладывается в полноценное спальное место. ТЕХНИЧЕСКОЕ РЕШЕНИЕ В проекте экстремально низкие потолки — всего 2,5 метра. Важно было отвлечь внимание от этой особенности и обустроить комфортный интерьер. Для этого мы минимально занизили потолок при выравнивании: он стал ниже буквально на несколько сантиметров. А ещё отказались от встраиваемых в потолок спотов, так как системы монтажа «съели» бы часть высоты, и выбрали люстру без подвеса, которая не мешает движению. Основные системы освещения расположили на стенах и направили «прожекторы» на потолок: таким образом получили и равномерное основное освещение, и декоративный эффект. ПЛАНИРОВКА ПРОЕКТА Разрабатывая планировку, мы, в первую очередь, привели узкое вытянутое помещение к более гармоничным пропорциям: установили все высокие системы хранения вдоль торцевой стены, а также поработали с цветом. Часть помещения, включая потолок, выделили краской приятного шалфейного оттенка: этот приём также помог сделать геометрию комнаты более гармоничной. Основной цвет проекта – шалфейный: выбор не случаен, так как хозяйка работает с травами. Кроме шалфейного, в интерьере много белого цвета, который наполняет пространство воздухом и светом. Не обошлось без женственных розовых оттенков и цветочного декора ручной работы. Шкаф вдоль стены — с секретом: он одновременно и платяной, и кухонный. Мы спроектировали шкафы глубиной полметра и сделали кухонные полки выдвижными, чтобы владельцам было легко добраться до самых дальних уголков. По центру встроили холодильник, над ним — дополнительный шкаф-антресоль. Вдоль стены установили напольные тумбы — с духовым шкафом, стиральной и посудомоечной машиной. Над рабочей зоной добавили облицовку зеркалом, чтобы визуально расширить пространство и увеличить количество света. КАКИЕ МАТЕРИАЛЫ МЫ ИСПОЛЬЗОВАЛИ? Белая краска для стен и краска с оттенком шалфея— с матовой текстурой, без блеска и бликов. Покрытие можно мыть. Виниловый пол напоминает настоящие доски: благодаря древесной текстуре в помещении стало уютнее. На фартук мы вертикально, в три ряда, уложили лаконичную белую плитку. Корпуса шкафов выполнены из качественного МДФ в белом цвете. Фасады — из МДФ под эмалью. Ламели в декоративных вставках — из шпона натурального дуба. Плетеные стулья у стойки создают солнечное, дачное настроение.
7 фотографий







