Квартира для большой семьи на Мосфильмовской
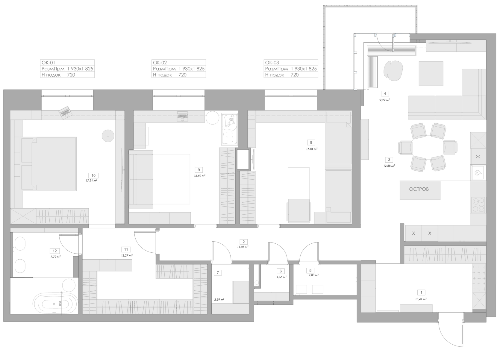
Владельцы этой квартиры — семья с двумя детьми и с перспективой появления третьего наследника. Нашей задачей было вдохнуть новую жизнь в пространство и освежить его, не затрагивая инженерные коммуникации — настоящий вызов, однако мы с интересом его приняли. О ПРОЕКТЕ Квартира для большой семьи. График работ и поставок по этому объекту был похож на шахматную партию. Чтобы уложиться в сжатые сроки, каждый новый ход нужно было координировать с выполнением предыдущих задач. Многие процессы приходилось вести параллельно, внахлест друг с другом — и в этом был определенный азарт. В результате нам удалось создать комфортный, гостеприимный интерьер, идеально адаптированный под потребности владельцев. ТЕХНИЧЕСКОЕ РЕШЕНИЕ Владельцы ценят комфорт, поэтому в техническом задании было много нюансов, которые мы с удовольствием учли: например, предусмотрели на кухне два холодильника, в ванных комнатах — по две раковины, а в гардеробной — открытую витрину для коллекции сумок заказчицы. Интерьер на Мосфильмовской — пример деликатного ремонта при максимальном сохранении исходных данных: границ помещений, отделки, электрики. Нашей задачей было минимизировать «грязную» часть ремонта, но вместе с тем адаптировать квартиру под потребности большой семьи. ПЛАНИРОВКА ПРОЕКТА Задача сохранить электрику отчасти продиктовала планировочное решение, однако нам удалось переосмыслить функциональные зоны. Например, разработать удачную эргономику для кухни-гостиной. В зоне кухни мы разместили два полноразмерных холодильника и всю необходимую технику, а также создали плавный переход к зоне столовой: кухонную линию завершили стеллажом для посуды со стеклянной дверцей. Обеденную зону отделили островом. Расстановку мебели в детской продумали таким образом, чтобы обеспечить максимальную приватность для двух сыновей, так как у мальчиков может быть разный режим. Кровати поставили одну за другой и разделили их стеллажом, с каждой стороны предусмотрели блок розеток. У каждой «спальной капсулы» есть бра с кнопкой включения на корпусе и шторы блэкаут: за счет текстиля можно устроить себе полностью независимое пространство. Планировку меняли только в деталях. Во-первых, разделили один из совмещенных санузлов — это представлялось логичным, так как в квартире будет проживать семья из пяти человек. Во-вторых, перенесли вход в постирочную. В-третьих, сделали большую проходную гардеробную в мастер-блоке. ОСОБЕННОСТИ ДАННОГО ПРОЕКТА Для всех жилых помещений выбрали единый оттенок стен: это сделало пространство цельным и завершенным. Дополнительным объединяющим элементом стал золотой профиль, который «прошел» по всей квартире. Металл появился в элементах светильников, в дизайне ручек и сантехнических аксессуаров, в виде профиля на кухонных фасадах. Важную роль сыграли радиусные формы и арки. Они воплотились в проекте и как самостоятельные графические элементы, и в формах мебели, и в дизайне светильников. Акцентные цвета — голубой, персиковый, кофейный и терракотовый — завершили дизайн-код этого проекта. Вспышки цвета появились и на неожиданных поверхностях: например, мы выкрасили в яркий оттенок оконные откосы в детской и кабинете (тоже будущей детской), чтобы создать более яркий, жизнерадостный интерьер. С утилитарными пространствами мы поработали так же вдумчиво, как и с жилыми. Например, предложили проходную гардеробную с открытыми витринами для любимых предметов хозяйки. Большие зеркала «растворяют» мебель в пространстве, а материал корпусов имеет легкое тиснение. Кроме этого «твидового» рельефа, визуальный контраст к гладким светлым поверхностям создают черные штанги. В мастер-ванной спроектировали зону открытой душевой с трапом и добавили эффектную ванну-чашу. Напротив ванной расположили стеллаж с подсветкой с комбинированными открытыми и закрытыми секциями, а зону умывания с двумя раковинами вынесли на подвесную консоль. Прием с двумя раковинами повторили и в детском санузле, так как этим помещением будут пользоваться двое сыновей. А в гостевом туалете добавили компактный неглубокий шкаф: он не только создает дополнительные возможности для хранения, но и скрывает инженерные системы. Ознакомиться с проектом можно по ссылке: https://agcarton.com/mosfilmovskaya
26 фотографий



























