Квартира на Бутырской
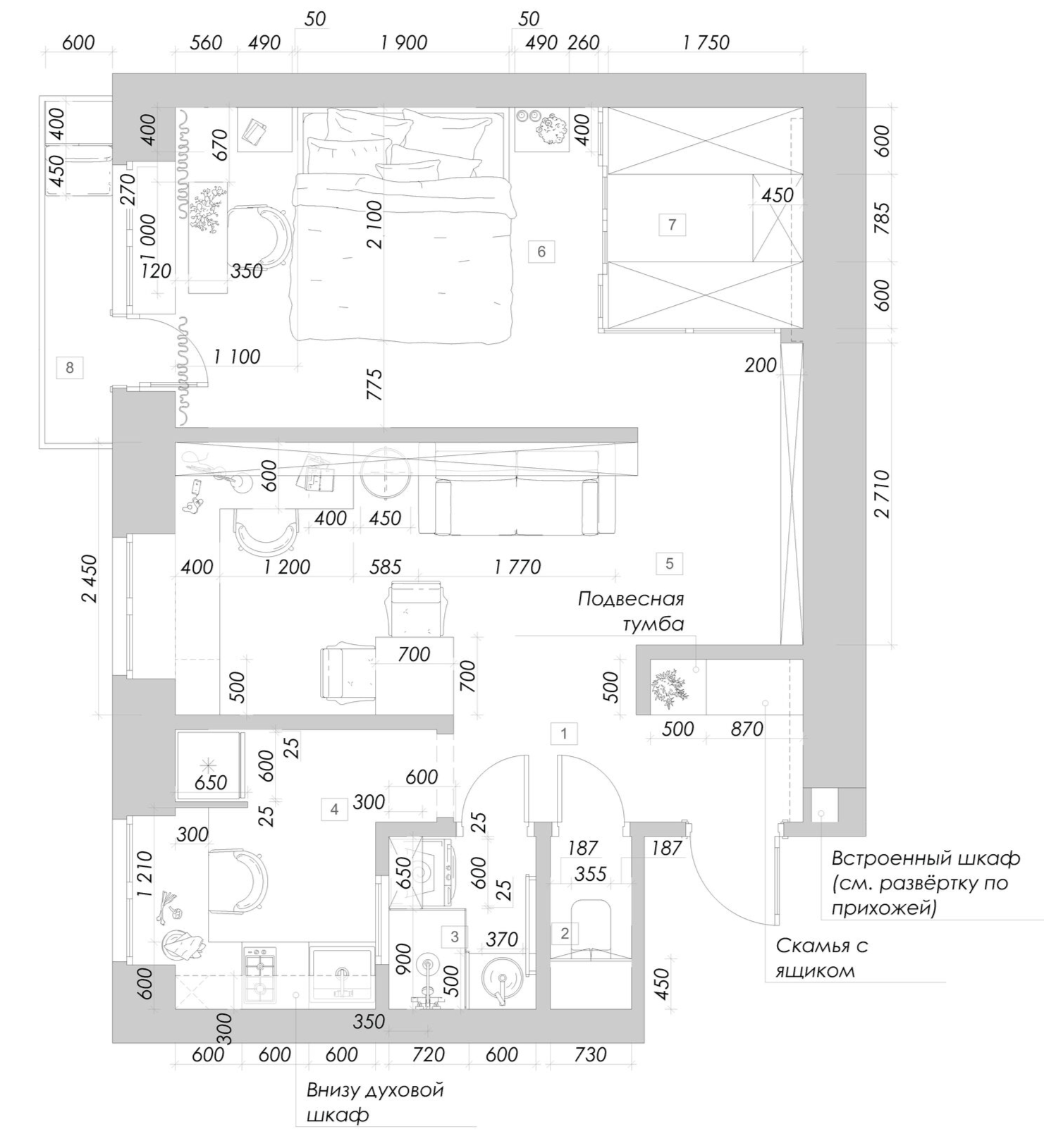
Изначально это была типовая двухкомнатная квартира 1960-х годов. Планировка включала две изолированные комнаты, кухню площадью 5 кв. м, прихожую и небольшой раздельный санузел. Одной из ключевых задач было оптимизировать пространство, поэтому мы убрали перегородку между гостиной и коридором и организовали во входной зоне компактное место для хранения сезонной одежды и обуви. Заказчица обратилась к нам с просьбой спроектировать квартиру, в которой будет жить она сама вместе с пушистым котиком. Стилистически и эстетически ей близок минимализм, а в процессе беседы мы выяснили, что заказчице нравятся темные насыщенные оттенки и открытые системы хранения (именно так впоследствии мы организовали хранение в гардеробной, а также сделали стеллаж и навесные полки для книг в гостиной). ТЕХНИЧЕСКОЕ РЕШЕНИЕ Также для коллекции книг заказчицы мы спроектировали стеллаж во всю стену и полки над диваном. Открытые секций, расположенные «вразбежку», формируют интересный ритм и дают разные возможности для хранения. Цветовая гамма интерьера построена на сочетании изумрудного, бордового теплых серых тонов. Чтобы пространство выглядело цельным, мы использовали ограниченное количество цветов и материалов, дублируя оттенки отделки в разных помещениях. Поскольку квартира небольшая, мы решили не «рассеивать» личные вещи по многочисленным шкафам, а сделать полноценную гардеробную. Под нее мы отдали часть площади спальни. По нашему замыслу, гостиная должна было сочетать в себе не только место для чаепития и общения с друзьями, но и полноценное пространство для работы. Чтобы не перегружать небольшое помещение, рабочий стол интегрировали в подоконник, а внутри столешницы мы предусмотрели ящики для бумаг и канцелярских принадлежностей. ПЛАНИРОВКА ПРОЕКТА По нашему замыслу, гостиная должна было сочетать в себе не только место для чаепития и общения с друзьями, но и полноценное пространство для работы. В кухне мы постарались функционально задействовать каждый сантиметр площади. Так, подоконник стал продолжением столешницы и превратился в стойку для завтраков, а полноценный обеденный стол — на случай прихода гостей — разместили в смежной гостиной. ОСОБЕННОСТИ ДАННОГО ПРОЕКТА Мы добавили графичности с помощью небольших деталей. Черный теневой плинтус, профили в скрытых дверях и отделке душевой кабины, контрастные смесители, шинопровод и светильники — все это позволило разнообразить интерьер, не перегружая его. Ознакомиться с проектом можно по ссылке: https://agcarton.com/butirskaya
18 фотографий


















