Квартира для молодой женщины
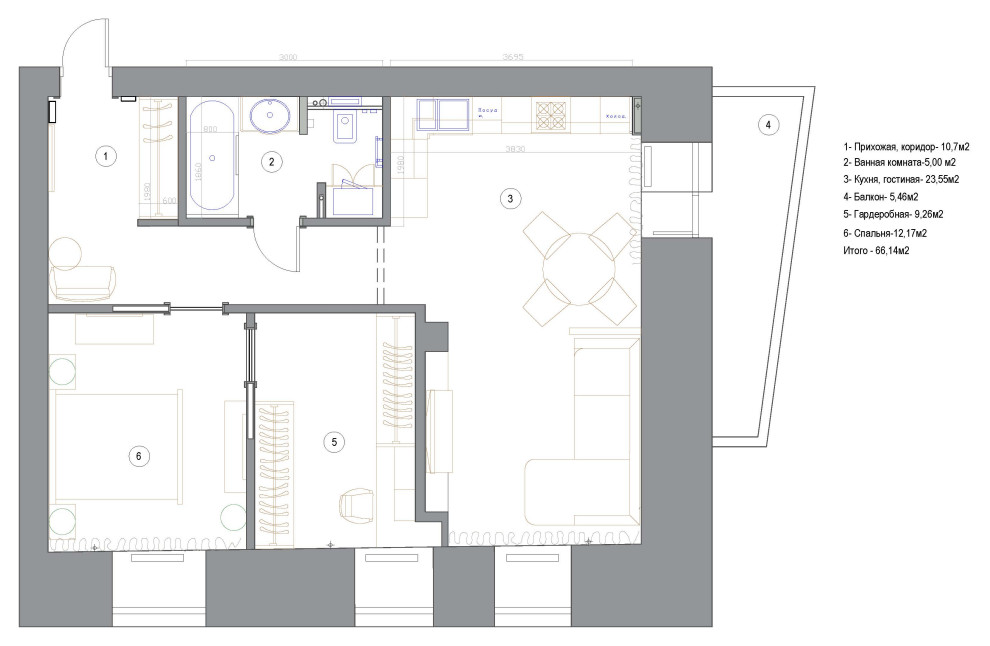
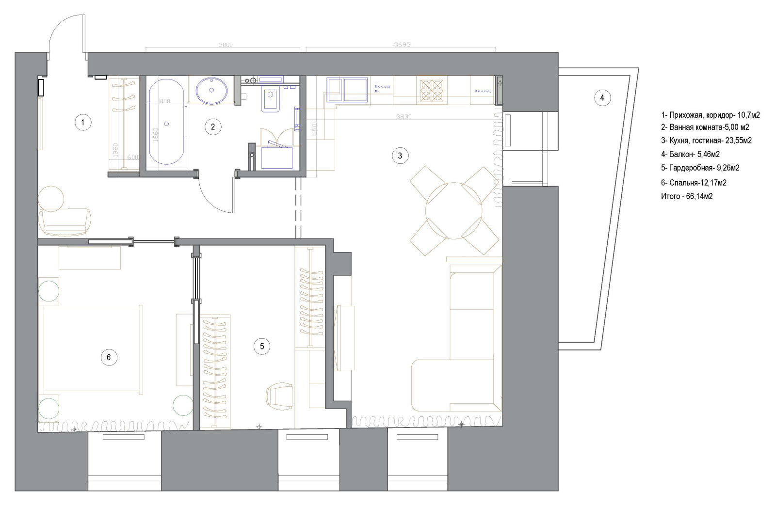
Визуализация интерьера квартиры для молодой девушки. Условие выделить гардеробную с рабочей зоной в отдельную комнату было выполнено, хотя и пришлось сделать небольшой угол возводимой внутренней стены из-за близкого размещения окон.
Год реализации: 2019
г. Москва
11 фотографий












