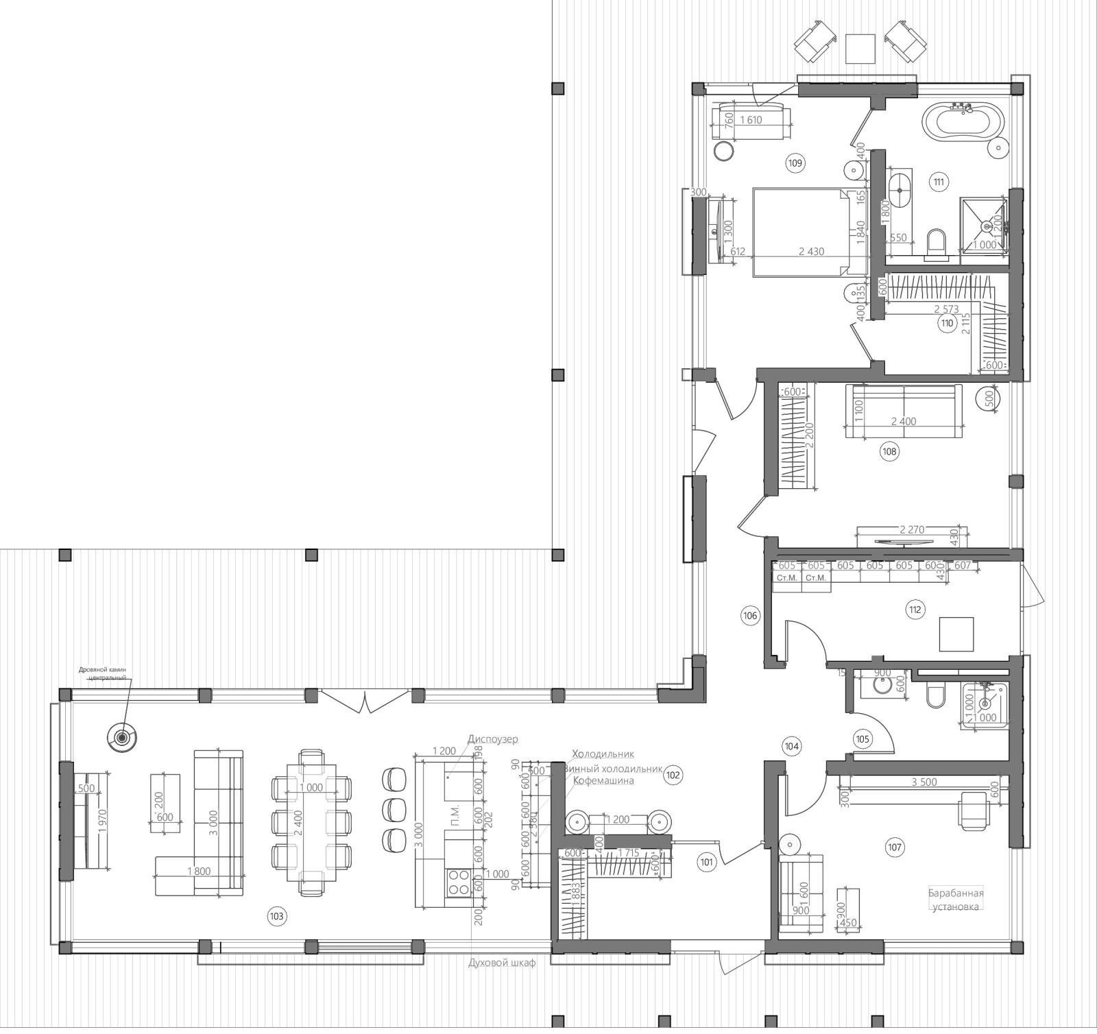
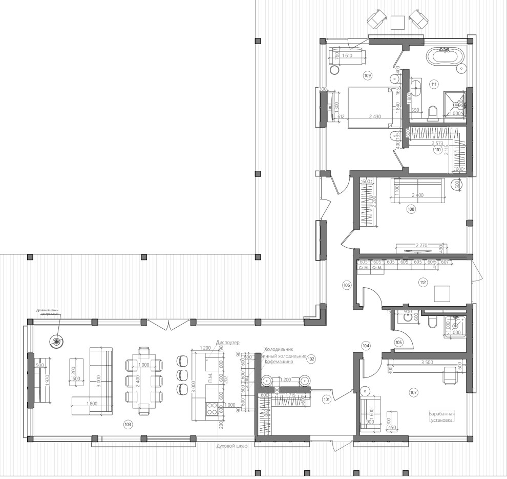
Загородный дом в Можайском районе
Проект загородного дома и интерьера в современном стиле создан в составе архитектурно-строительного бюро Woodintech.ru /Primehaus
Год реализации: 2021
г. Москва, Можайский район
17 фотографий
Проект загородного дома и интерьера в современном стиле создан в составе архитектурно-строительного бюро Woodintech.ru /Primehaus
17 фотографий
