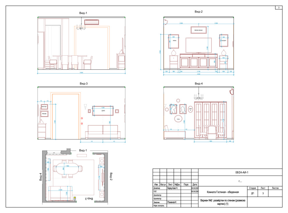
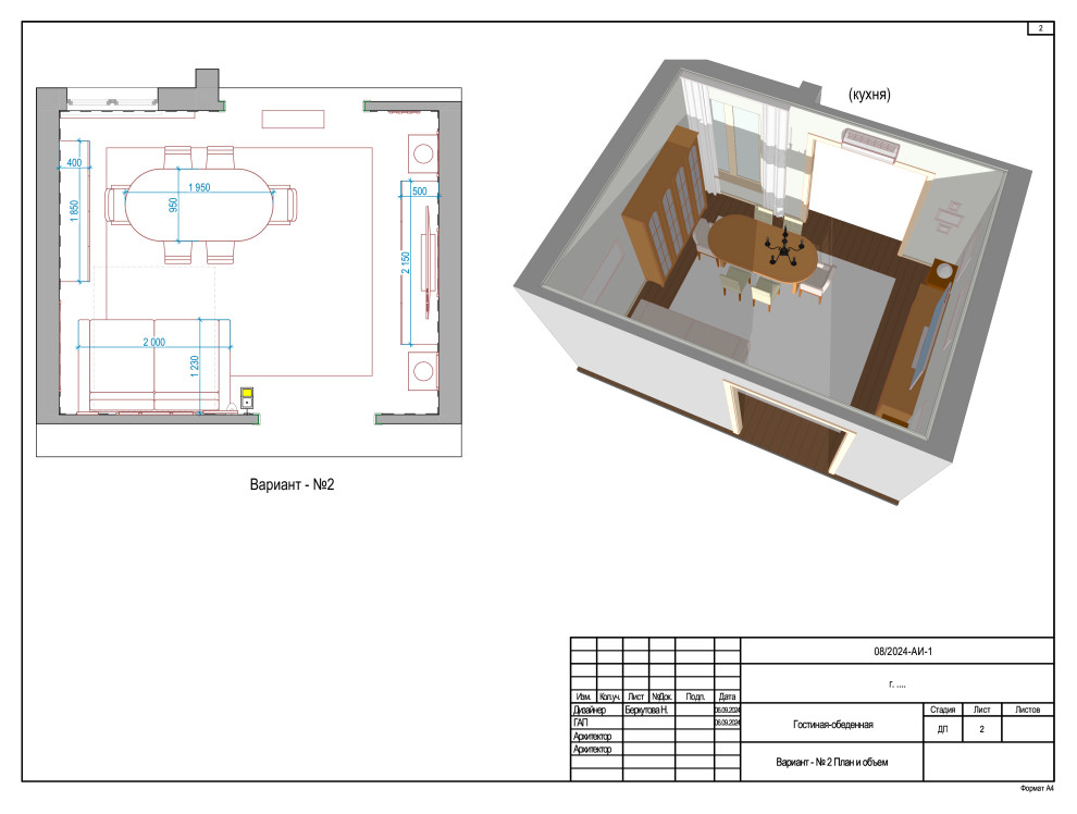
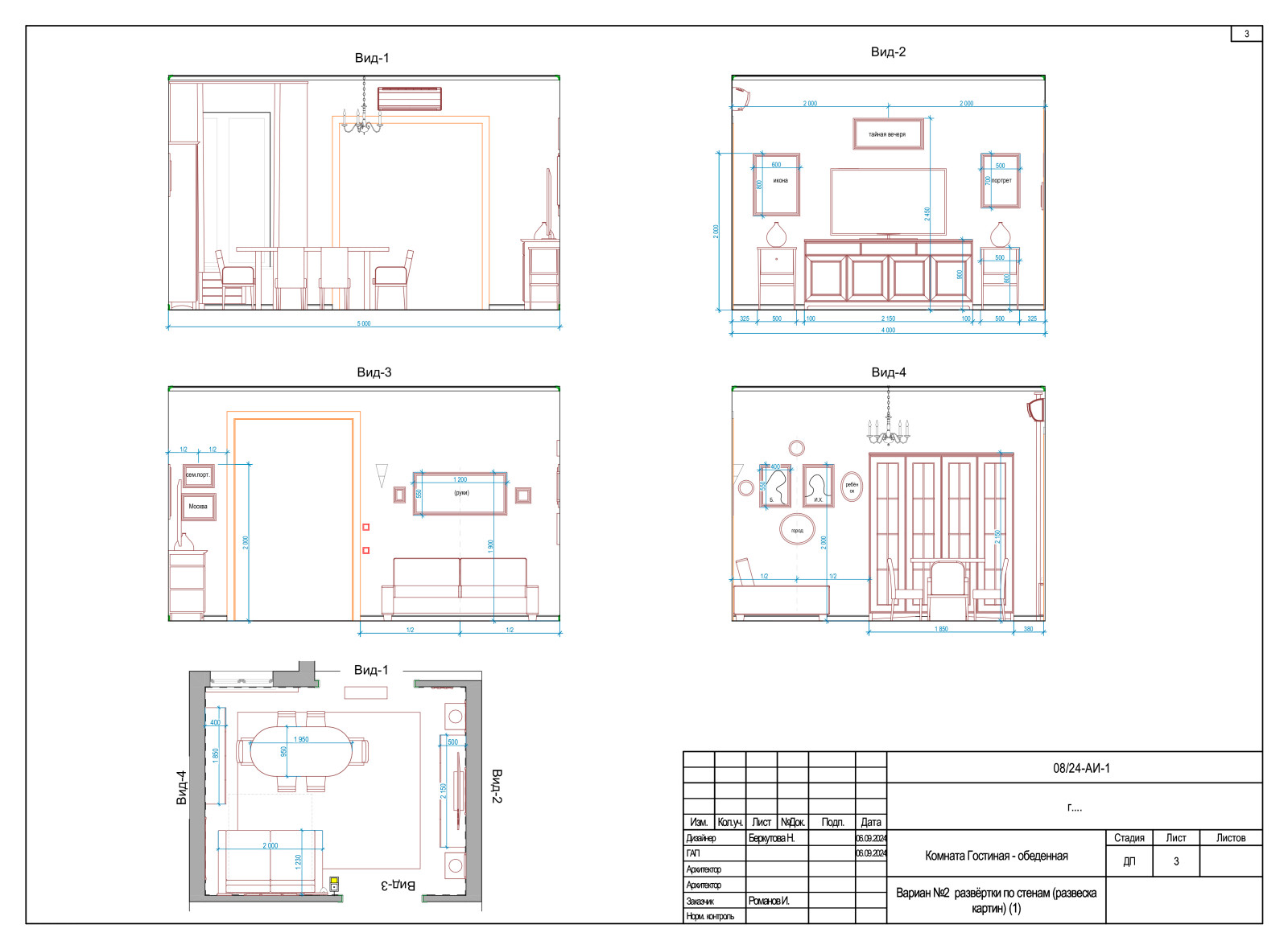
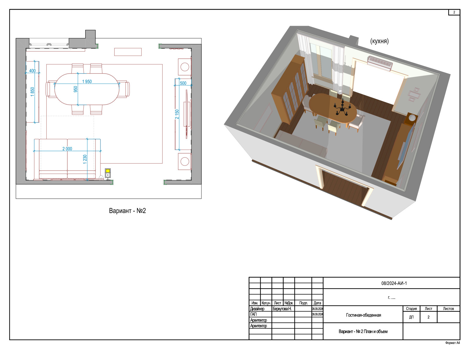
Квартира - Расстановка мебели, развеска картин.
Экспресс-проект по расстановке мебели в отдельном помещении "Кухня-гостиная", также я сделала развеску картин клиентов по стенам в привязке к новой расстановке мебели. Проект был выполнен в короткие сроки.
Год реализации: 2024
4 фотографии





