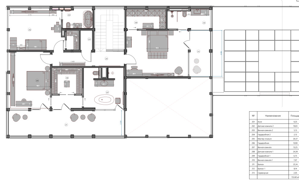
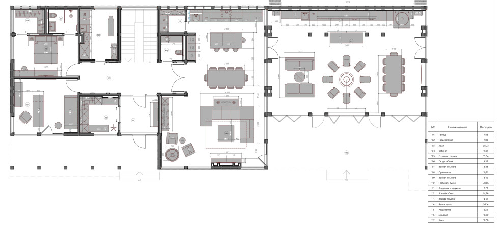
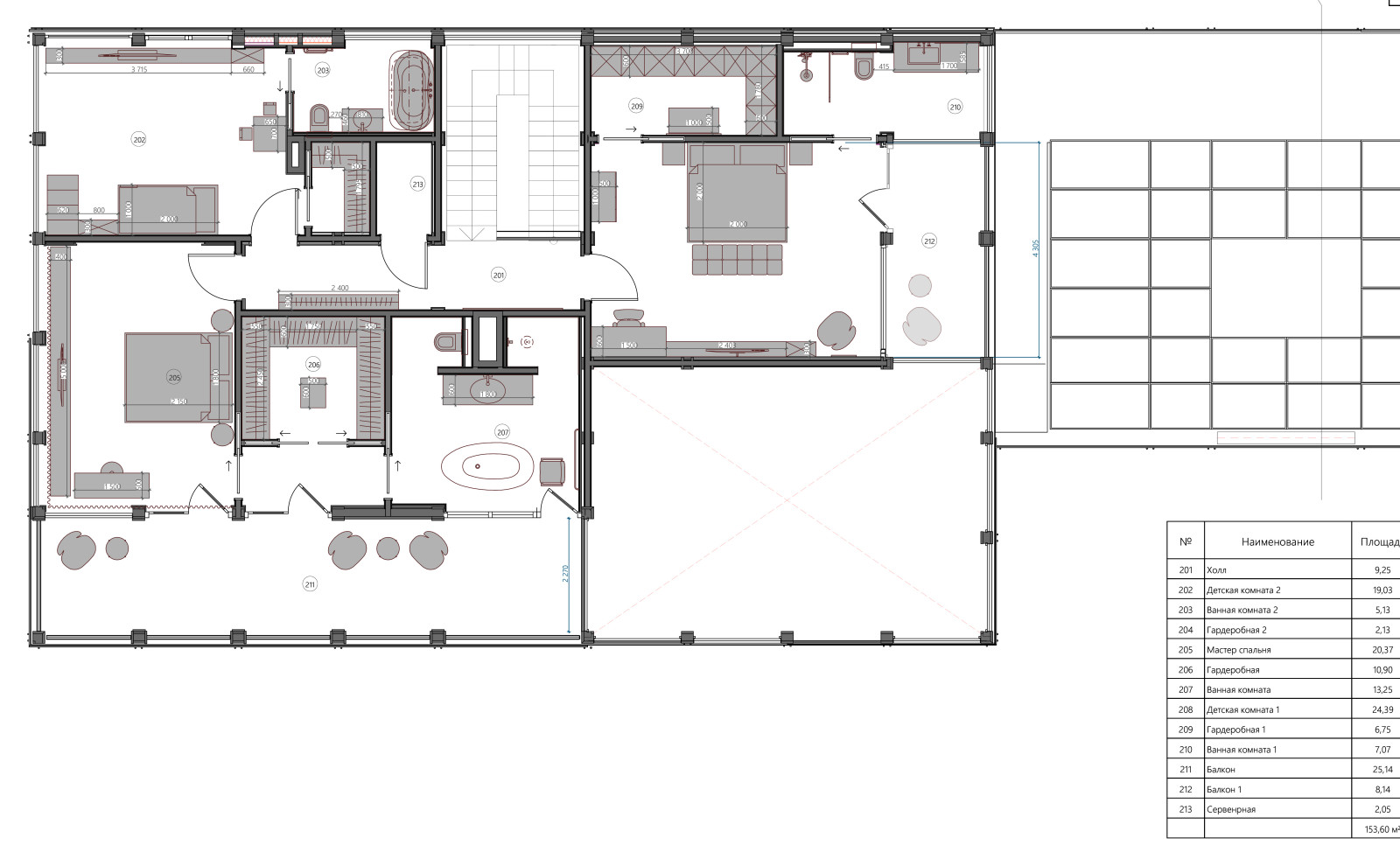
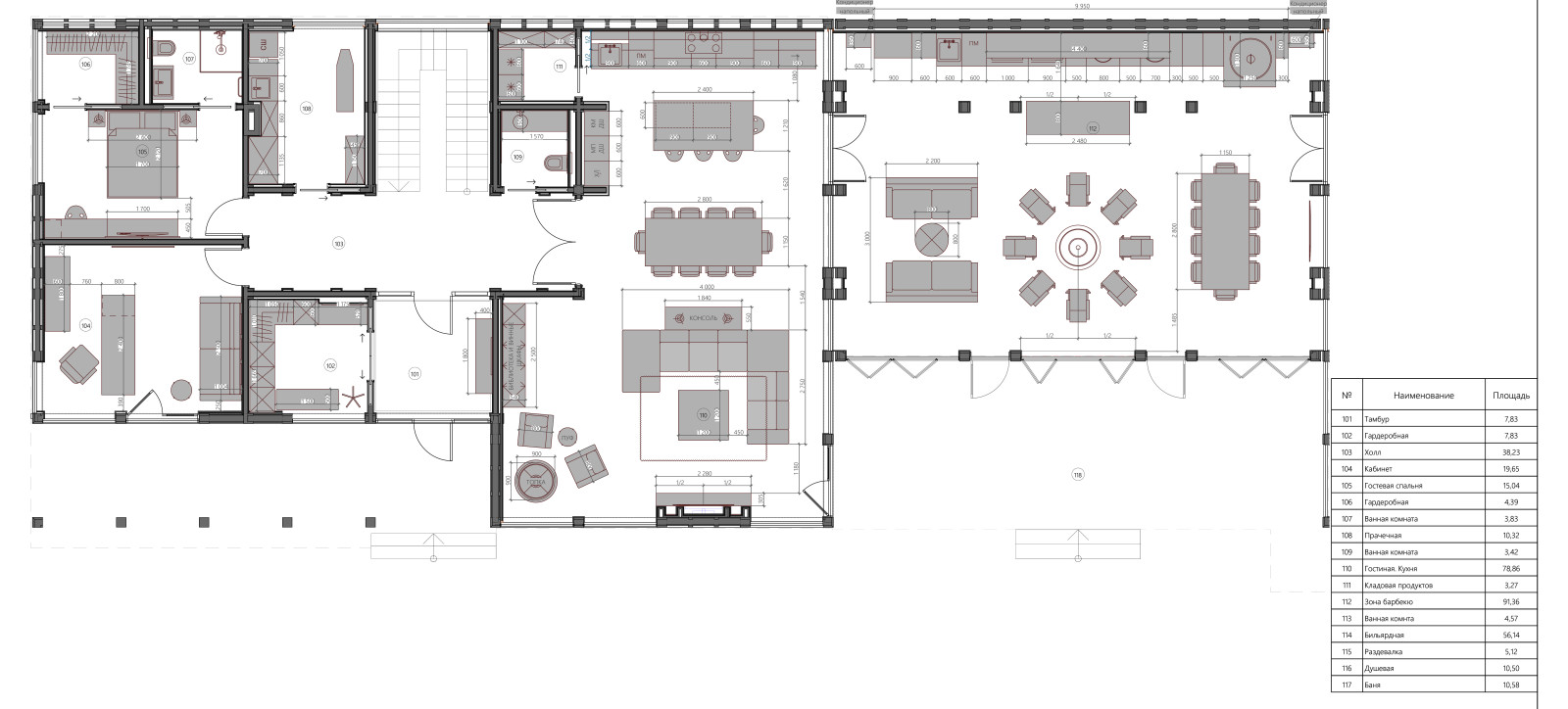
Частный дом в деревне Степаньково
Частный дом в современном был создан в составе архитектурно-строительного бюро Woodintech.ru / Primehaus
Год реализации: 2023
23 фотографии
Частный дом в современном был создан в составе архитектурно-строительного бюро Woodintech.ru / Primehaus
23 фотографии
