KURKINO
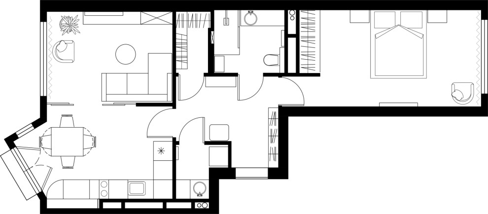
При работе над проектом были учтены главные пожеланиями клиента: квартира должна иметь гардеробную, зону прачечной, душевую и просторную кухню с гостиной. Несущих стен в данной квартире немного, дом монолитный, и все стены выполнены из пеноблоков, что дало возможность проявить фантазию в создании уютной квартиры. . . Кухню спроектировали проходной, сквозь нее попадаешь в гостиную, изолированную стеклянной перегородкой. Зону готовки организовали вдоль двух стен: по одной разместили колонны со встроенной техникой, по другой расположились нижние кухонные шкафы со столешницей из кварца. Стена с фартуком оформлена большеформатной керамической плиткой. У окна разместилась ниша для газового оборудования, скрытая под мебельными фасадами. . . В гостиной разместился комфортный угловой диван, с него открывается вид на биокамин, встроенный в витринный шкаф, что создает уют и теплую атмосферу. Стены гостиной окрашены в светлые цвета и декорированы настенными молдингами. За телевизором в качестве декора использованы гипсовые 3D панели, интегрированные в заранее подготовленную нишу. . . Спальня создана в светлосерых тонах. Над изголовьем кровати выполнена отделка с помощью гипсовых молдингов. Справа и слева от кровати на стены нанесена декоративная штукатурка, окаймленная металлическими молдингами. На противоположной стене расположено фотопанно с геометрическим рисунком. Ярким элементом спальни являются металлические молдинги, присутствующие не только на фотопанно, но и обрамляющие большое зеркало. В качестве системы хранения установлен шкаф, фасады которого изготовлены способом фрезеровки с последующей вклейкой металлических молдингов по индивидуальному заказу дизайнера проекта. . . В ванной комнате установлена большая душевая кабина. В качестве отделки стен выбрана керамическая плитка с текстурой под итальянскую мозаичную технологию "Терраццо". Расцветка санузла выполнена в нежно-розовом цвете. . . Благодаря свечению сквозь вставки из закаленного стекла межкомнатных дверей, создается эффект “парящего полотна”. . . Квартира получилась в нежных светлосерых и розовых тонах. Уют помещению придают биокамин и элементы декора на стенах. Общий стиль соответствует современной эклектике. . . ЖК НОВОГОРСК ПАРК / ХИМКИ / 59 м2 / 2020
18 фотографий



















