Контрасты. Квартира в ЖК "Цветы"
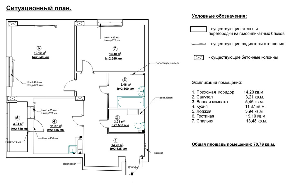
Визуализация жилого интерьера двухкомнатной квартиры в ЖК "Цветы". . Общая площадь квартиры 70 кв.м.
Год реализации: 2019
Стоимость проектирования: 135 000 ₽
г. Нижний Новгород
29 фотографий
Визуализация жилого интерьера двухкомнатной квартиры в ЖК "Цветы". . Общая площадь квартиры 70 кв.м.
29 фотографий
