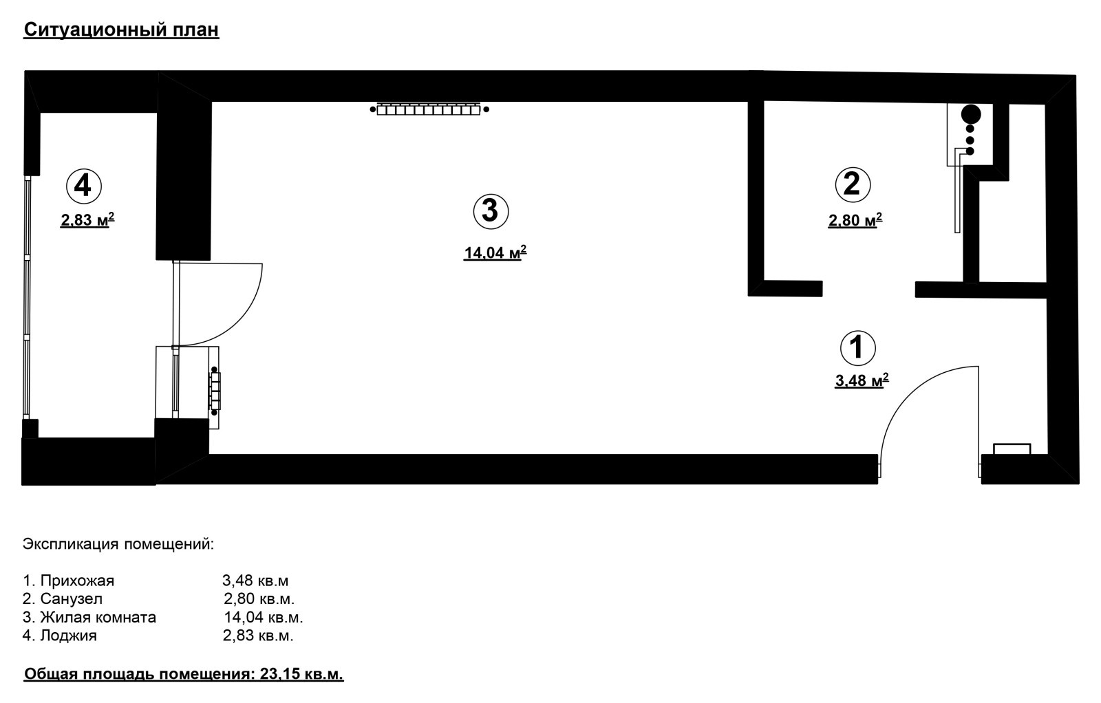
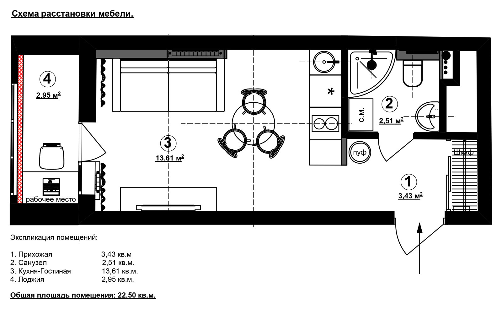
Студия-Малышка в ЖК "Москва-град" 22 кв.м.
Реализованный объект в ЖК "Москва-град" в г. Нижний Новгород. . Квартира-студия для семейной пары 22 кв.м.
Год реализации: 2020
Стоимость проектирования: 135 000 ₽
г. Нижний Новгород
14 фотографий
Реализованный объект в ЖК "Москва-град" в г. Нижний Новгород. . Квартира-студия для семейной пары 22 кв.м.
14 фотографий
