FOREST
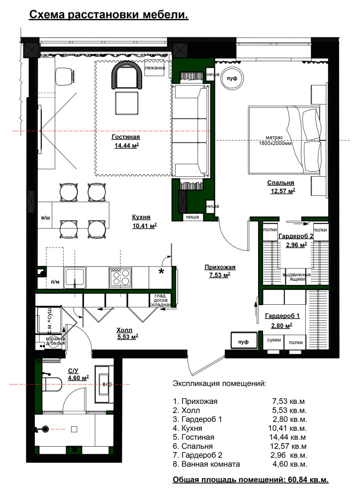
Визуализация жилого интерьера двухкомнатной квартиры в ЖК Клубный дом на Нижегородской. . Общая площадь квартиры 62 кв.м.
Год реализации: 2021
Стоимость проектирования: 135 000 ₽
г. Нижний Новгород
30 фотографий
Визуализация жилого интерьера двухкомнатной квартиры в ЖК Клубный дом на Нижегородской. . Общая площадь квартиры 62 кв.м.
30 фотографий
