Lilac flat
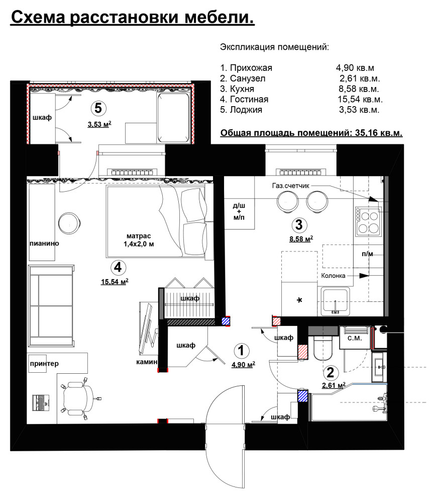
Визуализация жилого интерьера однокомнатной квартиры в г. Богородск. . Общая площадь квартиры 36 кв.м.
Год реализации: 2022
Стоимость проектирования: 135 000 ₽
27 фотографий
Визуализация жилого интерьера однокомнатной квартиры в г. Богородск. . Общая площадь квартиры 36 кв.м.
27 фотографий
