Каркасный дом в Зимней Горке
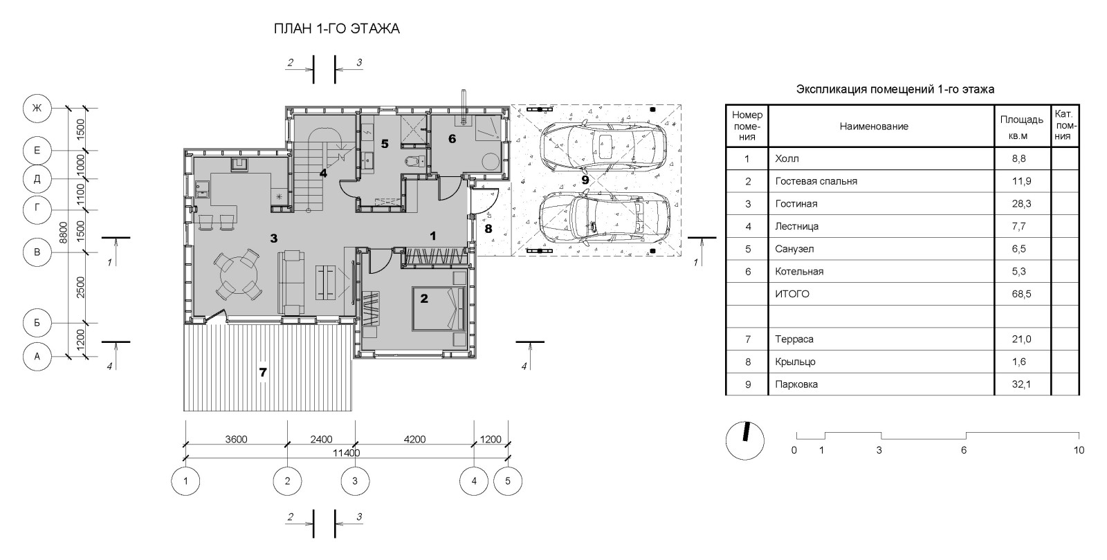
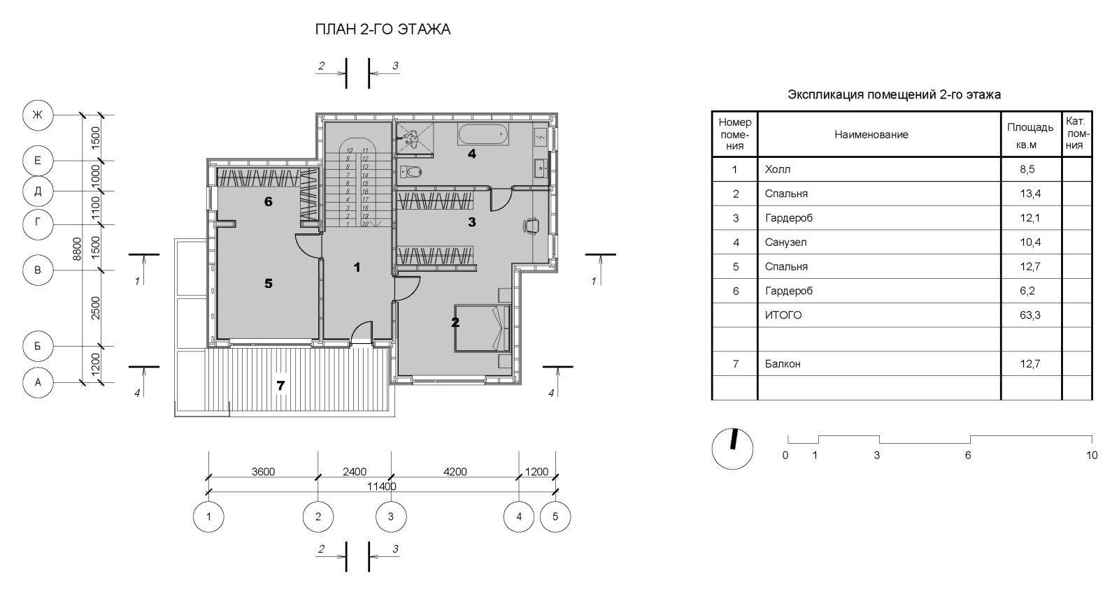
Основные технико-экономические показатели: Площадь застройки жилого дома: 107,8 кв. м Общий строительный объем: 544,9 куб. м Общая площадь жилого дома: 131,8 кв. м Площадь террасы: 21,0 кв. м Площадь балкона: 12,7 кв. м Общая площадь жилого дома с летними помещениями: 165,5 кв. м Площадь парковки на 2 м/места: 32,2 кв. м ГЕНЕРАЛЬНЫЙ ПЛАН С южной стороны участок ограничен поселковой дорогой, через которую открывается вид на осиновую рощу. С севера и с запада территория граничит с соседями. Было решено расположить сооружение ближе к северной границе с нормативным отступом 3 метра, исключая затенение оставшегося пространства и обеспечить максимальное естественное освещение и инсоляцию жилых помещений сквозь большие оконные проемы ориентированные на юг без ущерба для приватности. Чтобы сохранить наиболее ценный фронт свободным от построек и любых зрительных помех, заезд организован с востока. Запроектирована площадка размерами 6,0х6,0 м с твердым покрытием, рассчитанная на 2 машиноместа возможностью независимого въезда и выезда. Над парковкой предусмотрен минималистичный навес из деревянных конструкций. АРХИТЕКТУРНО-ПЛАНИРОВОЧНЫЕ РЕШЕНИЯ Дом запроектирован двухэтажным, что позволило выделить и сгруппировать общественные и приватные помещения. В уровне первого этажа: прихожая, котельная, гостевая спальня, кухня-гостиная-столовая, санузел. Гостиная-столовая большими витражными окнами выходит на юг. Кухня располагается в нише. Кухонная зона дополнительно освещается двумя одностворчатыми окнами на западном фасаде. Терраса частично защищена от возможного избыточного солнца и осадков перекрытием балкона. В объеме гостиной также размещена лестница у северной стены в пользу максимальной ориентации жилых комнат на южную сторону. Высота потолков составляет около 3,0 метров в чистоте. . Поднявшись наверх, обитатели оказываются в освещенном холле, который может служить библиотекой или зимним садом. Из этого помещения можно попасть на балкон и в 2 спальни. Главная спальня, расположенная в восточной части, оборудована вместительной гардеробной и просторным санузлом. В западной части размещена еще одна жилая комната с гардеробной. . Оконные проемы размещены таким образом, чтобы можно было устраивать сквозное проветривание. С целью повышения энергоэффективности сооружения, а также обеспечения естественного освещения и инсоляции, самые большие окна вынесены на южный фасад. ОТДЕЛКА ФАСАДОВ Отделка фасадов выполнена из сосны. Имитация бруса 21х135, выкрашенная двумя слоями полуматового кроющего антисептика Tikkurila Vinha. Подшивка крыши, лобовая доска, обрамление балкона -- из сухой строганой доски 20х140, окрашено в белый цвет Туликки – один из оттенков каталога, содержащего 30 цветов, близких к природным и гармонирующих с ландшафтом в любое время года. Оконные отливы из оцинкованного металла. Деревянный каркас навеса для авто выполнен из массивного строганого бруса. В качестве покрытия использован оцинкованный профнастил Н75. КОНСТРУКТИВНЫЕ РЕШЕНИЯ Для постройки выбрана каркасная технология, как наиболее экономически сбалансированная с точки зрения воплощения объемно-планировочного решения. Каркас собран их сухого пиломатериала. Консольный вынос балкона (2,25 м) воплощен с применением рамы из LVL-бруса, интегрированной в каркас. В ответственных узлах конструкции применен силовой крепеж: конструкционные шурупы, болтовые соединения. Фундамент: монолитная ж/б плита 200 мм на подготовленном уплотненном основании из песка и гравия Пол 1-го этажа: - ЭППС по монолитной ж/б фундаментной плите - полусухая стяжка с системой теплого пола Наружные стены: - обшивка имитацией бруса; - влаго-ветрозащитная мембрана; - деревянный каркас из сухой доски 50х150 с заполнением минераловатным утеплителем; - контр-утепление, брусок 50х50 перпендикулярно стойкам каркаса - пароизоляционная мембрана - обшивка ГКЛ 2 слоя со смещением листов Междуэтажное перекрытие: система балок 50х200 Внутренние стены/перегородки: каркасные с обшивкой ГКЛ в 2 слоя и заполнением звукоизоляционным материалом, изолированным мембраной с обеих сторон Конструкция крыши: - наплавляемый гидроизоляционный кровельный материал (2 слоя) - листовой материал OSB-3 - обрешетка 25х100, шаг 250 - контр-брус 50х50 по балкам покрытия - мембрана влаго-ветрозащитная - система балок 50х200 с утеплением - контр-утепление, брусок 50х50 - пароизоляционная мембрана - рейка 25х50, шаг 300 - деревянная отделка потолков
13 фотографий













