Проект Мегарон μέγαρον
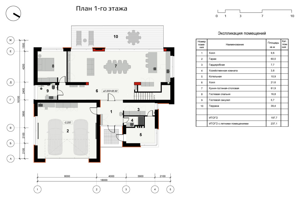
Проект “Мегарон” . . ОБЩИЕ ДАННЫЕ: . Местоположение: РТ, Лаишевский район, КП Европа; . Проектирование: 2023; . Строительство: 2024-2025; . Статус: идет строительство; . Этажность: 2 этажа; . Площадь застройки: 300 кв. м; . Общая площадь: 352,5 кв. м; . Общая площадь с летними помещениями: 476,5 кв. м. . . КОНСТРУКТИВНЫЕ РЕШЕНИЯ: . Конструктивная система: продольные и поперечные несущие стены, неполный монолитный каркас; . Фундамент: монолитный ж/б ленточный на глубину промерзания; . Полы 1-го этажа: монолитная ж/б плита по уплотненному песчаному основанию; . Наружные и внутренние стены: кладка из керамического камня 2,1НФ; . Наружные стены с кирпичной облицовкой: кладка из керамического блока Porotherm 44 . Междуэтажное перекрытие: монолитная ж/б плита; . Покрытие: монолитная ж/б плита. Уклонообразование выполнено с помощью клиновидной теплоизоляции из XPS, ТПО мембрана в качестве гидроизоляционного слоя, балласт из гравия, парапетные воронки. . . История проекта . Познакомится с хозяином мне посчастливилось на исходе переломного 2022 года. Знакомство оказалось судьбоносным – мне выпала честь разработать проект большого нового дома для заказчика и его семьи. Мы впервые встретились в их старом доме, и это оказалось очень удобно: формулировать задание на проектирование, опираясь на реальный опыт постройки и эксплуатации предыдущего жилища. . В результате в ТЗ был зафиксирован классический набор помещений: просторная кухня-гостиная, гостевая спальня, технические и вспомогательные помещения на первом этаже. На втором этаже размещалась приватная зона с главной спальней, двумя детскими комнатами, кабинетом, а также гардеробными, санузлами и постирочной. Кроме того, непременным условием было наличие теплого гаража на 2 машиноместа и помещения для мытья лап собаки где-то при входе. . . Идеология . Участок для строительства расположен в «концептуальном» коттеджном посёлке, как его именует девелопер. Основная идея концепции — создание гармоничной архитектурной среды. Все дома в посёлке выполнены из камня в современном стиле, преобладают плоские кровли. . Соединив средовые условия с заданием заказчика, перед мной стояла задача запроектировать просторный и дорогостоящий модернистский дом, стилистически происходящий из ХХ столетия или мегарон μέγαρον, как называли подобное сооружение древние греки. Большая постройка из глины с плоским перекрытием. Такой дом служил наполовину дворцом и наполовину храмом. В мегаронах совершали жертвоприношения, принимали почётных гостей и устраивали царские пиры. Всем этим предстоит заниматься хозяину после завершения строительства. . Уверен, что многие архитекторы и заказчики втайне мечтают построить подобный объект, но зачастую не решаются из-за устойчивой стереотипизации скатных крыш в наших широтах и мнимой технической сложности подобного конструктивного решения. Эстеты или профессионалы напротив справедливо могут посчитать тему ортогонального архитектурного тетриса слишком проработанной и от того менее интересной. . Но тем менее дом практически построен, он контекстуально уместен, полезен, прочен и красив. Отражает своего хозяина и является воплощением его желаний и усилий. . Генеральный план . Начиная работу над каждым проектом, я прежде всего думаю о контексте. В данном случае участок площадью 11 соток, довольно скромный по размеру и окруженный соседями с трех сторон, продиктовал конфигурацию объемно-планировочного решения. Так от боковых границ участка до здания осталось всего по 3 метра – минимальное нормативное расстояние. Въезд на участок осуществляется с тупикового разворотного кольца, а передняя граница – это радиусная линия и от нее пришлось отступить минимальные 5 метров. В результате удалось максимально сохранить свободное место на участке для благоустройства. В будущем вдоль задней границы участка разместится спа-комплекс и хозяйственные постройки, а между домом и вспомогательными сооружениями будет разбит сад. Это обеспечит приватность внутреннего двора. . . Объемно-планировочное решение . Таким образом, дом обрел два активных фасада: главный, обращенный на северо-восток, и дворовой, ориентированный на юго-запад. Боковые фасады, обращенные на соседние участки, в свою очередь, получились утилитарные и почти без окон. Полагаю, такое решение оправдано для частной архитектуры, так как ее главными адресатами и зрителями являются сам владелец, его семья и гости. . Чтобы избежать размещения жилых комнат над гаражом было принято решение воплотить его в одноэтажном объеме, пристроенном к основному телу дома. Крыша гаража задумана эксплуатируемой, с зелеными насаждениями и небольшой террасой. Выход предусмотрен из кабинета. Там же аккуратно разместятся наружные блоки климатической системы. . Стеклянная входная группа заглублена относительно плоскости фасада, образуя крыльцо под навесом. С этой площадки можно также попасть в котельную непосредственно с улицы. Главный вход ведет в холл — наполненное светом буферное пространство квадратной формы, из которого можно попасть в гараж, помещение для мойки лап, гардеробную и котельную. Широкое использование светопрозрачных конструкций по оси холл-гостиная-терраса-сад создает ощущение открытости и визуальной связности пространства. В гостиной высота потолков составляет 3,9 метра, а в холле и вспомогательных помещениях — 3 метра. Благодаря этому создаётся театральный эффект поэтапного раскрытия интерьера по мере того, как вы продвигаетесь вглубь дома. Гостиная отделена от уличной террасы стеклянной подъемно-раздвижной четырехстворчатой конструкцией ALT SL160 8000х3300 мм с двумя активными створками по середине, открывающими свободный проем шириной 4000 мм. Консольный балкон служит навесом, который защищает террасу от дождя и снега. Он также помогает избежать яркого света и перегрева в гостиной в жаркие летние дни. При этом низкие лучи западного солнца свободно проникают в интерьер, создавая комфортное освещение в вечернее время. . Все жилые комнаты на втором этаже обращены окнами во внутренний двор, а кабинет и постирочная отнесены на противоположную сторону. Неизбежный монотонный коридор на втором этаже превращен в галерею благодарю витражному остеклению, открывающему вид на зеленую кровлю гаража. Мастер-блок объединяет хозяйскую спальню, гардеробную и санузел и одновременно из всех помещений предусмотрен выход на балкон. . . Отделка фасадов . В качестве основного фонового материала применена светлая штукатурка, нанесённая на слой базальтовой теплоизоляции. Одноэтажный гараж и первый этаж со стороны главного парадного фасада облицованы ригельным кирпичом натурального оттенка. Облицовка из кирпича намеренно применена в тех местах, где есть возможность тактильно взаимодействовать с этим материалом и ощутить его фактуру и скульптурность. Гармоничное сочетание гладкой белой штукатурки и рельефного охристого камня дополнительное оттеняется планкеном из термодревесины, покрытым темным маслом. Этот тип отделки превалирует на фасаде, обращенном во двор, стремясь создать более теплое и домашнее настроение в саду. На этот образ работают горизонтальные ленты деревянной перголы, протянувшиеся вдоль всего фасада, которые служат цели дополнительной гармонизации здания с окружающим ландшафтом. . . Конструкции . Разобраться с конструкциями этого сооружения мне помог блестящий инженер-конструктор Дмитрий Курзин. В этом проекте мы, как и всегда, стремились к конструктивной честности и лаконичности, насколько это позволяют многодельные каменные и железобетонные конструкции. Монолитные диски перекрытия и покрытия опираются на наружные и внутренние несущие стены из керамики, а в особо нагруженных местах добавлены железобетонные колонны и балки. Такой подход позволил оптимизировать материалоемкость сооружения, а, следовательно, и сметную стоимость строительства. . . . .
26 фотографий



























