Дом в поселке Кояшлы, г. Казань
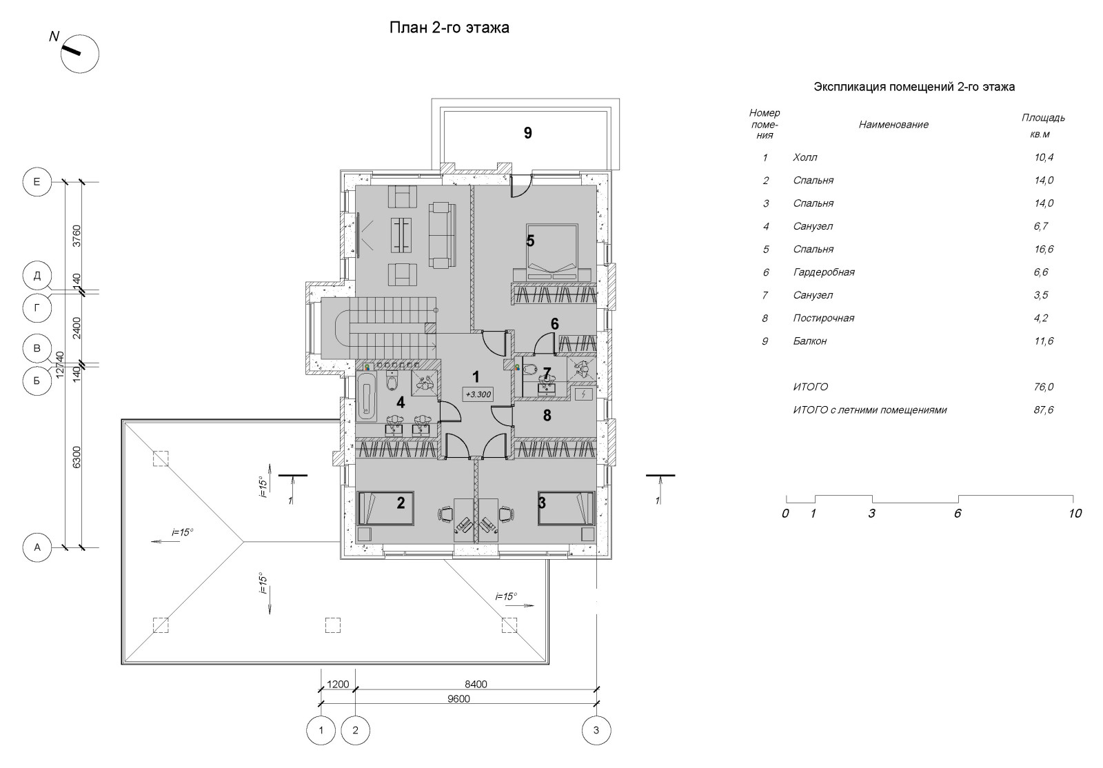
Местоположение: г. Казань, пос. Кояшлы Проектирование: 2020 Статус: постройка Общая площадь: 178,2 кв. м Заказчик пришел ко мне с готовым проектом в стиле неоклассики от известного казанского архитектурного бюро, но что-то подтолкнуло его к поиску альтернативного решения. Так родился этот проект, тоже довольно традиционный, но чуть более современный и построенный на контекстуальном подходе. Облицовочный кирпич природных оттенков, планкен из термопихты на фасаде и подшиве крыши призваны выигрышным образом корреспондировать со стволами растущих на участке многолетних сосен. На главном фасаде предусмотрен практичный пристроенный навес над парковочными местами и крыльцом. Парковый фасад получил просторную террасу и балкон, окружённые густой хвоей. Главная ценность этого проекта для меня заключается в том, что он все-таки построен строительной компанией более-менее по проекту и качественно. Не в последнюю очередь благодаря вовлеченности в строительный процесс отца заказчика в качестве человека, беспристрастно радеющего за результат. КОНСТРУКТИВНЫЕ РЕШЕНИЯ: Размеры в крайних осях: 12,74х9,6 м Высота 1-го этажа: 3,3 м Высота 2-го этажа: 3,0 м Конструктивная схема здания - продольные и поперечные несущие стены. Фундамент: монолитный ж/б ростверк с буронабивными монолитными ж/б сваями; Цоколь: кладка из газобетонного блока 400 D400; Междуэтажное перекрытие на отм. низа +3.000: сборные ж/б плиты ПК; Чердачное перекрытие: по деревянным балкам; Наружные стены: кладка из газобетонных блоков D400 625х400х200 с облицовкой керамическим кирпичом 1НФ 250х120х65; Перегородки: кладка керамического камня 2,1НФ; Перемычки над проемами: монолитные ж/б с использованием лотковых газобетонных U-блоков в качестве несъемной опалубки (в наружных стенах), сборные ж/б перемычки (во внутренних стенах); Конструкция крыши: стропильная система из деревянных пиломатериалов; Кровля: металлическая фальцевая
14 фотографий















