Интерьер дома в “Английском стиле”
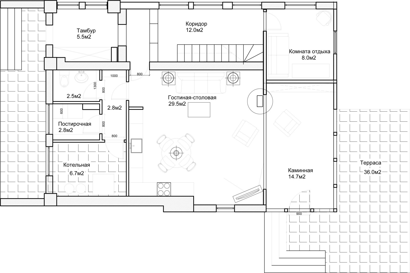
. В начале 90-х в России стало модным строительство домов и оформление их интерьеров в так называемом “Английском стиле”. Эстетика столетней давности и другой культурной ментальности была искусственно перенесена на просторы пригородов России. Это явление, красивое и натуральное в оригинале породило квадратные километры нелепости и уродства в Подмосковье и пригородах других городов. Механический и чисто поверхностный перенос увиденных где-то красот выявляется в искажении самой сути явления и отражается в самой нелепой эстетической форме. . Пожелания заказчика – сделать дом в “Английском стиле” было воспринято как некий творческий вызов. Было решено не впадать в поверхностное стилизаторство, а создать работу которая бы создавала ощущение, являлось бы символом и настроением атмосферы “Английского стиля”. . Планировочная структура дома. . Дом, который необходимо спроектировать в реале является реконструкцией и обновлением старого дома. На основе предварительного исследования были выявлены особенности и недостатки существующей постройки. Например – большая часть окон обращена на север и забор. Помещения также не расположены оптимальным способом. Предлагается полная перепланировка дома с минимальными внедрениями в конструкцию первого этажа и перепланировка второго этажа с заменой кровли. Предложенная плановая структура оптимизирует взаимосвязь помещений, их конфигурацию, инсоляцию, освещение и дает лучшие визуально-видовые характеристики. .
9 фотографий










