Дом в “Английском стиле”
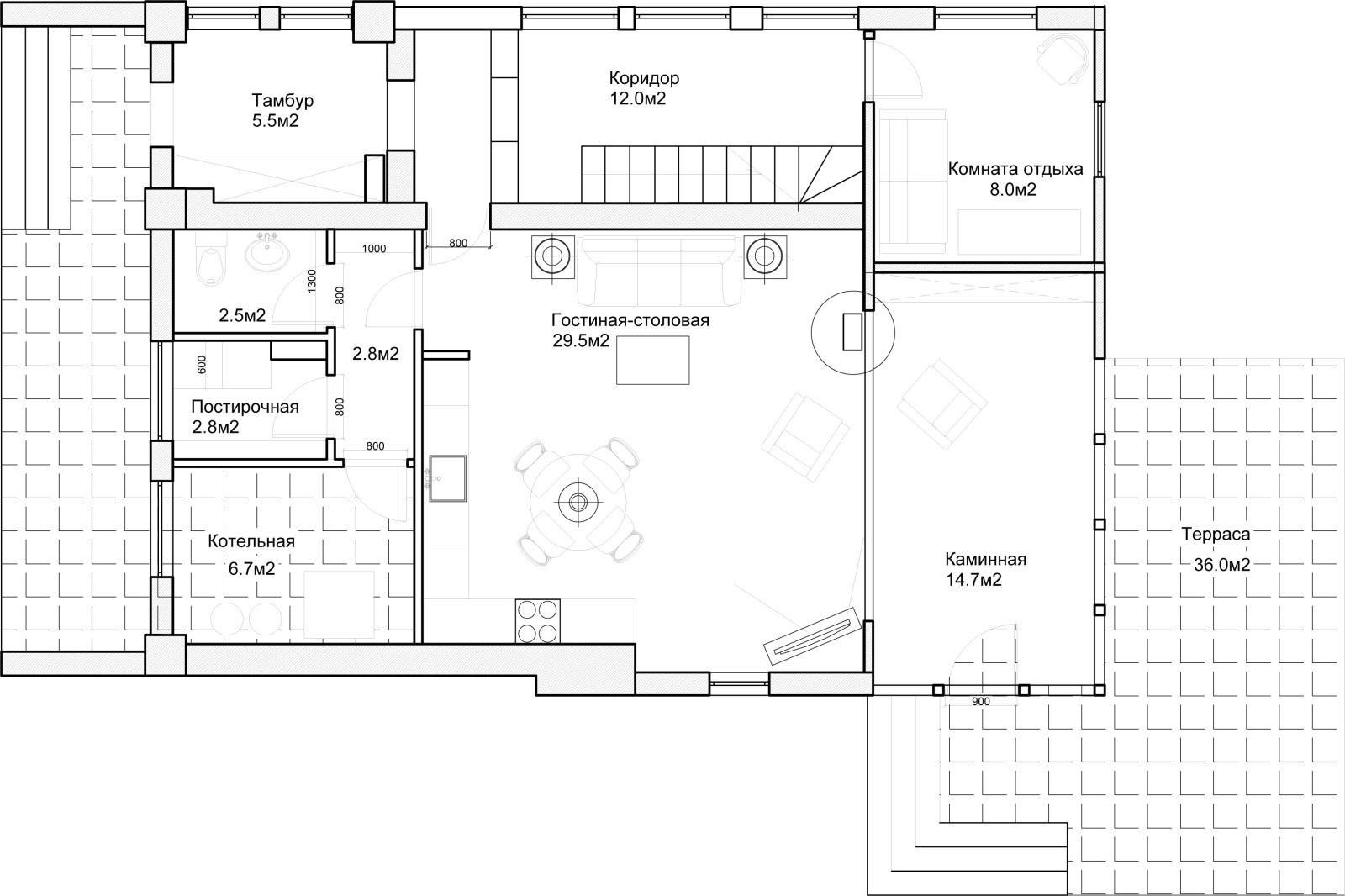
Дом в “Английском стиле” . В начале 90-х в России стало модным строительство домов и оформление их интерьеров в так называемом “Английском стиле”. Эстетика столетней давности и другой культурной ментальности была искусственно перенесена на просторы пригородов России. Это явление, красивое и натуральное в оригинале породило квадратные километры нелепости и уродства в Подмосковье и пригородах других городов. Механический и чисто поверхностный перенос увиденных где-то красот выявляется в искажении самой сути явления и отражается в самой нелепой эстетической форме. . Пожелания заказчика – сделать дом в “Английском стиле” было воспринято как некий творческий вызов. Было решено не впадать в поверхностное стилизаторство, а создать работу которая бы создавала ощущение, являлось бы символом и настроением атмосферы “Английского стиля”. . Планировочная структура дома. . Дом, который необходимо спроектировать в реале является реконструкцией и обновлением старого дома. На основе предварительного исследования были выявлены особенности и недостатки существующей постройки. Например – большая часть окон обращена на север и забор. Помещения также не расположены оптимальным способом. Предлагается полная перепланировка дома с минимальными внедрениями в конструкцию первого этажа и перепланировка второго этажа с заменой кровли. Предложенная плановая структура оптимизирует взаимосвязь помещений, их конфигурацию, инсоляцию, освещение и дает лучшие визуально-видовые характеристики. . Эстетическое решение дома. . В проекте было решено использовать паттерны “Английского дома”, с их помощью создать атмосферу и настроение . Так выявив основы традиционного дома в Англии, а именно: - скатная кровля, доминирование поверхности стены над остеклением, текстура кирпича, темный коричневый цвет основной массы и цвет светлой” рустовки” был создан рекомендуемый проект. Кровля дома скатная, современность ей придает отсутствие карниза. Отделочный материал фасада и кровли – клинкерная плитка. В массах доминирует плоскость стены и темный терракотовый цвет. Некоторые поля на фасаде инкрустированы светлой клинкерной плиткой с вертикальным направлением – современная интерпретация традиционного белого руста. . Резюме. . Претворяя в жизнь мечту заказчика по дому в “Английском стиле” удалось создать заданную атмосферу, при этом избежав поверхностного стилизаторства и искажения, дом является современном прочтением вековой традиции. .
7 фотографий







