Дом для огородника
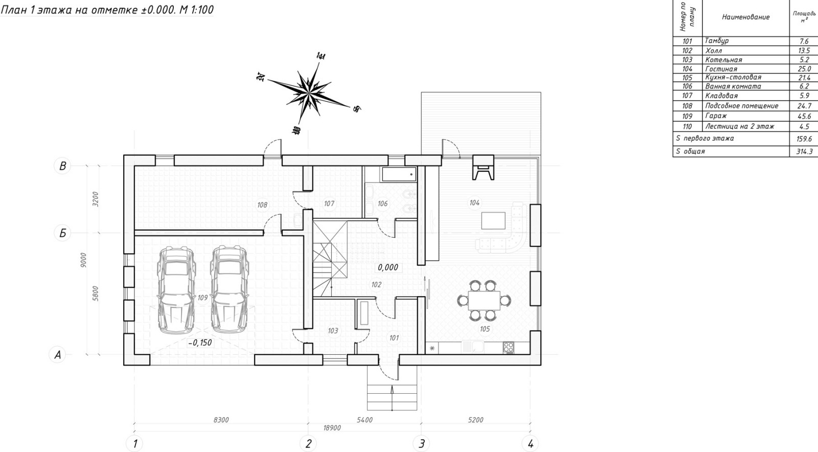
Дом для огородника . ОБРАЗНОЕ РЕШЕНИЕ . Попытка быть традиционным и современным одновременно, наряду со специфическим пожеланием заказчика создать много места для хранения садово-огородного инвентаря и складик- мастерскую сыграли решающую роль во внешнем облике дома и его плановой структуре. Двускатная кровля и кирпичные стены выступают в роли хранителей традиции. Угловое панорамное окно и обрамление швеллером безкарнизной кровли и цоколя, также как и вертикальный ритм полей из деревянного бруса – безапелляционные глашатаи своего времени и новой эры неомодернизма с его ответвлением в регионализм 21 века. Помимо обрамления дома из швеллера, которое образует две своеобразные скобы, по обе стороны от гаражных ворот есть в проекте дома еще одна оригинальная деталь – на L образных отгибах формируемых несколькими полями из бруса предусмотрены места для кашпо. Это придает дому большую уникальность и живописность как в старинных европейских домах – еще один современный отсыл к традициям. . . ФУНКЦИОНАЛЬНОЕ РЕШЕНИЕ . На плановую структуру сильное влияние оказали уже готовые фундаменты – они серьезно ограничивали маневры. По условиям хозяина практически половина дома была предназначена под расширенный хозблок с гаражом и подсобными помещениями. Дом в плане представляет собой вытянутый прямоугольник. Практически по центру располагается входная группа и распределительный холл. В право кухня-столовая-гостиная, в лево котельная, гараж и помещения хозблока. По соседству с холлом санузел, а из холла лестница на второй этаж. Второй этаж, по смыслу отображает первый – на право спальни и ванная комната, налево большое пространство под склад-мастерскую. Следует отметить, что вся левая часть дома со временем может быть полностью или частично тансформирована в жилые помещения. При полной трансформации дом из одноквартирного с хозблоком превратится в двухквартирный. . . КОНСТРУКТИВНОЕ РЕШЕНИЕ , РЕШЕНИЕ ПО ОТДЕЛОЧНЫМ МАТЕРИАЛАМ . Стены планируется сделать по существующим фундаментам из газосиликатного блока. Монолитное обвязочное кольцо в месте стыка с перекрытием и с кровлей. Отделка дома – фасадный кирпич сложного коричнево-красного оттенка с вертикальными полями из деревянного бруса. Кровля – фальцованная, металлическая. Часть элементов отделки фасадов – швеллеры. . . Главный архитектор проекта Виталий Ананченко .
9 фотографий










