Индивидуальный жилой дом с баней и гаражом в деревне Труфаново
Год реализации: 2014
Стоимость проектирования: 275 000 ₽
г. Тюмень
6 фотографий
6 фотографий

Компактный деревянный жилой дом площадью 115 м2
Индивидуальный жилой дом в деревне Черная Речка
Индивидуальный дом 350 м2 с гаражом и баней в поселке Московский
Модульный энергоэффективный дом в Москве
Индивидуальный жилой дом 300 м2 с пристроенным банным комплексом и гаражом
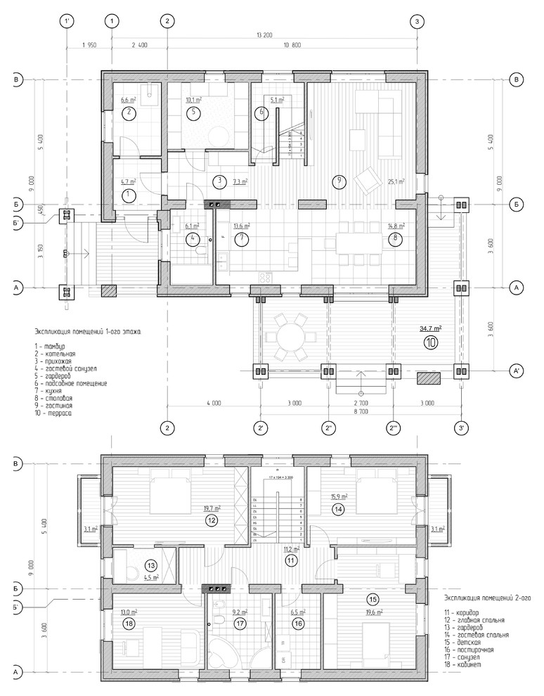
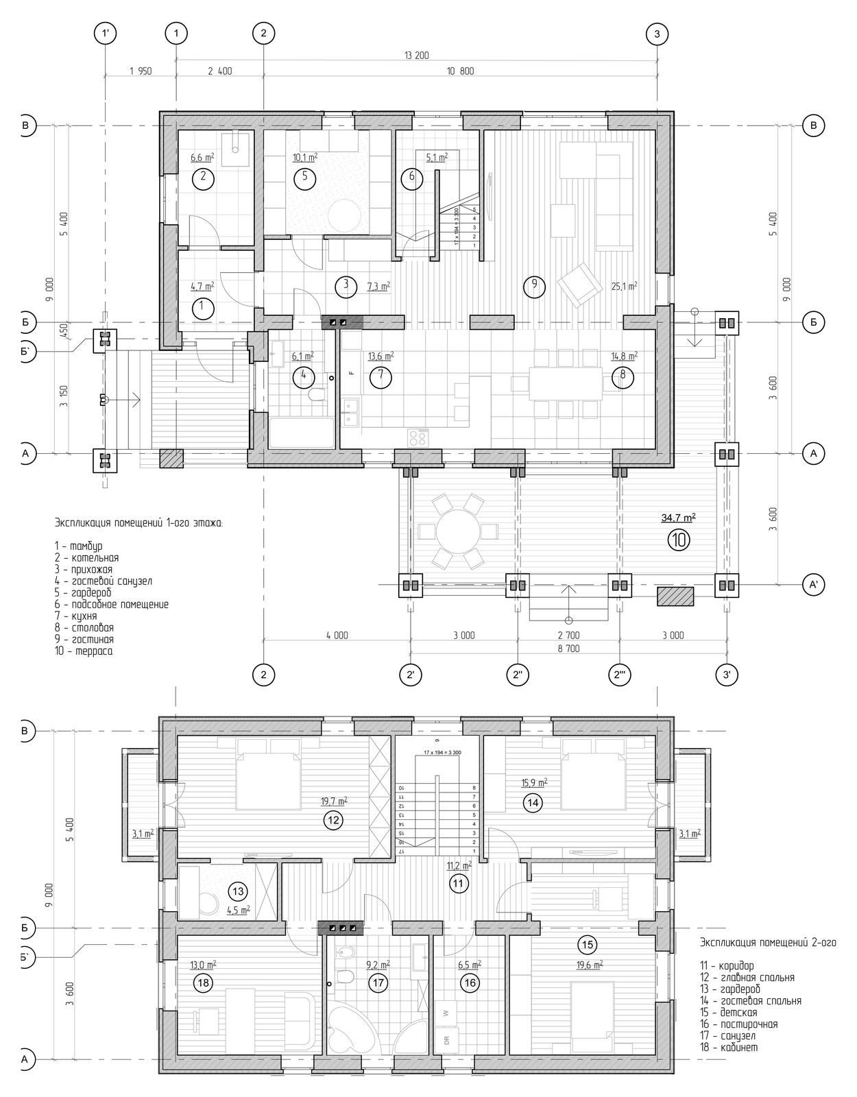
Блокированный дом на 2 семьи