Модульный энергоэффективный дом в Москве
Год реализации: 2014
Стоимость проектирования: 525 000 ₽
г. Москва
6 фотографий
6 фотографий

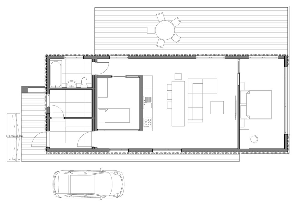
Компактный деревянный жилой дом площадью 115 м2
Индивидуальный жилой дом в деревне Черная Речка
Индивидуальный дом 350 м2 с гаражом и баней в поселке Московский
Индивидуальный жилой дом 300 м2 с пристроенным банным комплексом и гаражом
Индивидуальный жилой дом с баней и гаражом в деревне Труфаново
Блокированный дом на 2 семьи