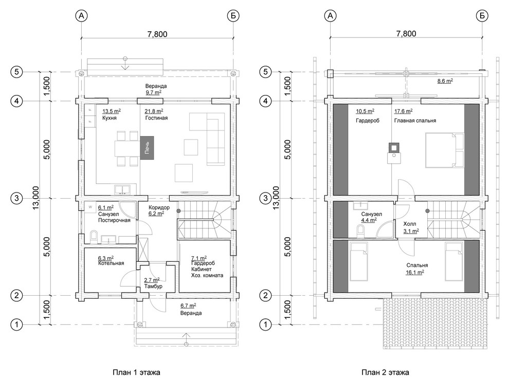
Компактный деревянный жилой дом площадью 115 м2
Год реализации: 2017
г. Тюмень
4 фотографии
4 фотографии

Индивидуальный жилой дом в деревне Черная Речка
Индивидуальный дом 350 м2 с гаражом и баней в поселке Московский
Модульный энергоэффективный дом в Москве
Индивидуальный жилой дом 300 м2 с пристроенным банным комплексом и гаражом
Индивидуальный жилой дом с баней и гаражом в деревне Труфаново
Блокированный дом на 2 семьи