Банный комплекс c 2 гостевыми спальнями и террасой
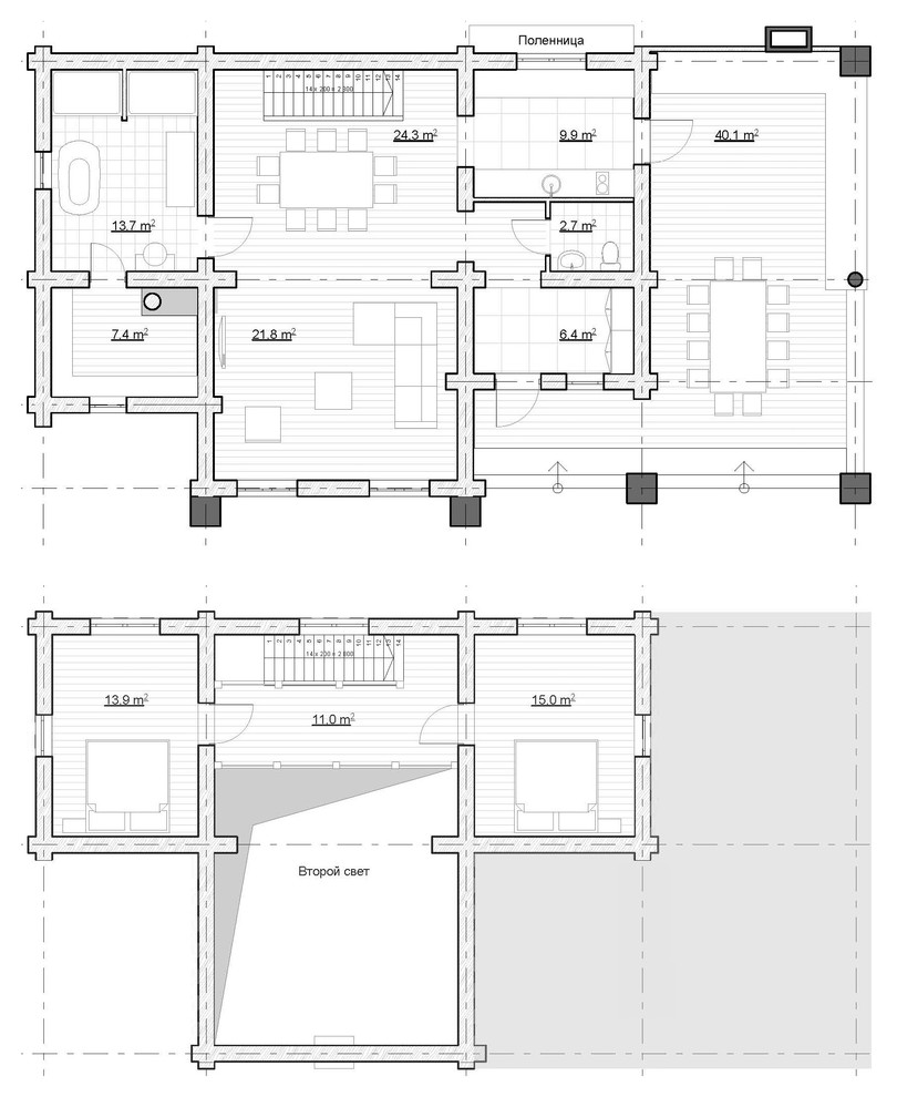
Банный комплеск из оцилиндрованного бревна с двухсветной комнатой отдыха и террасой для барбекю. На втором этаже расположены 2 гостевые спальни.
Год реализации: 2013
Стоимость проектирования: 275 000 ₽
г. Тюмень
5 фотографий





