Банный комплекс с террасой

Другие фотографии в проекте Банный комплекс c 2 гостевыми спальнями и террасой

Банный комплекс с террасой
Банный комплекс с террасой
Банный комплекс с террасой
Банный комплекс с террасой

Вопросы к фото 0

Задайте вопрос

Вам ответят эксперты. Пришлем уведомление, когда вам ответят

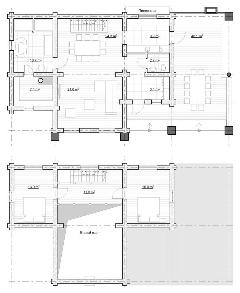
План бани, План бани с гостевыми спальнями, План бани с террасой, Тюмень

Владимир Сергеев

Владимир Сергеев

Архитекторы

Смотреть профиль

0

отзывов

0

Рейтинг

Банный комплекс c 2 гостевыми спальнями и террасой

Банный комплеск из оцилиндрованного бревна с двухсветной комнатой отдыха и террасой для барбекю. На втором этаже расположены 2 гостевые спальни.

Вопросы к фото 0