Forester shack
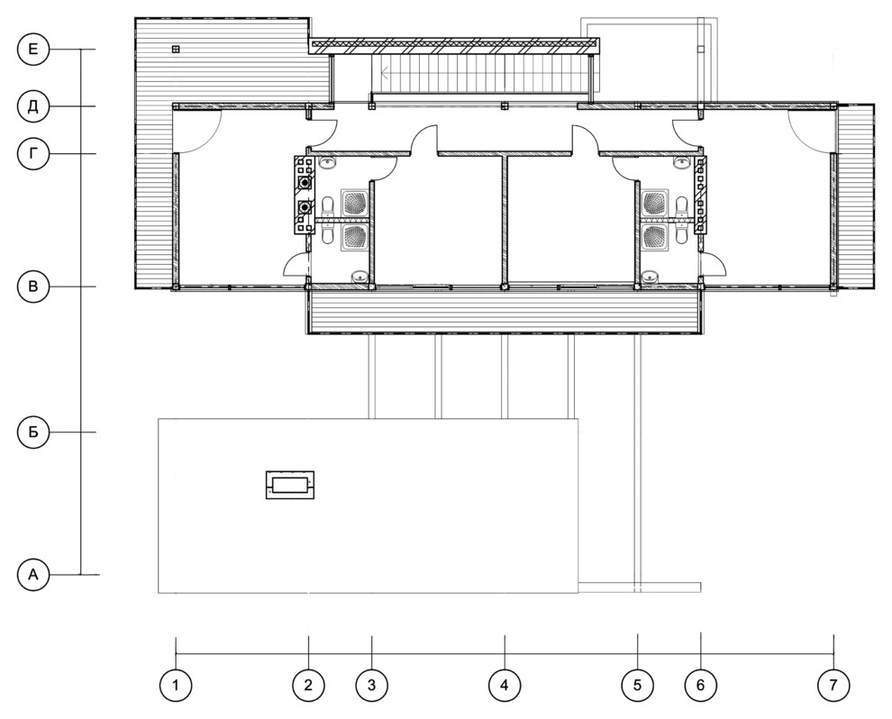
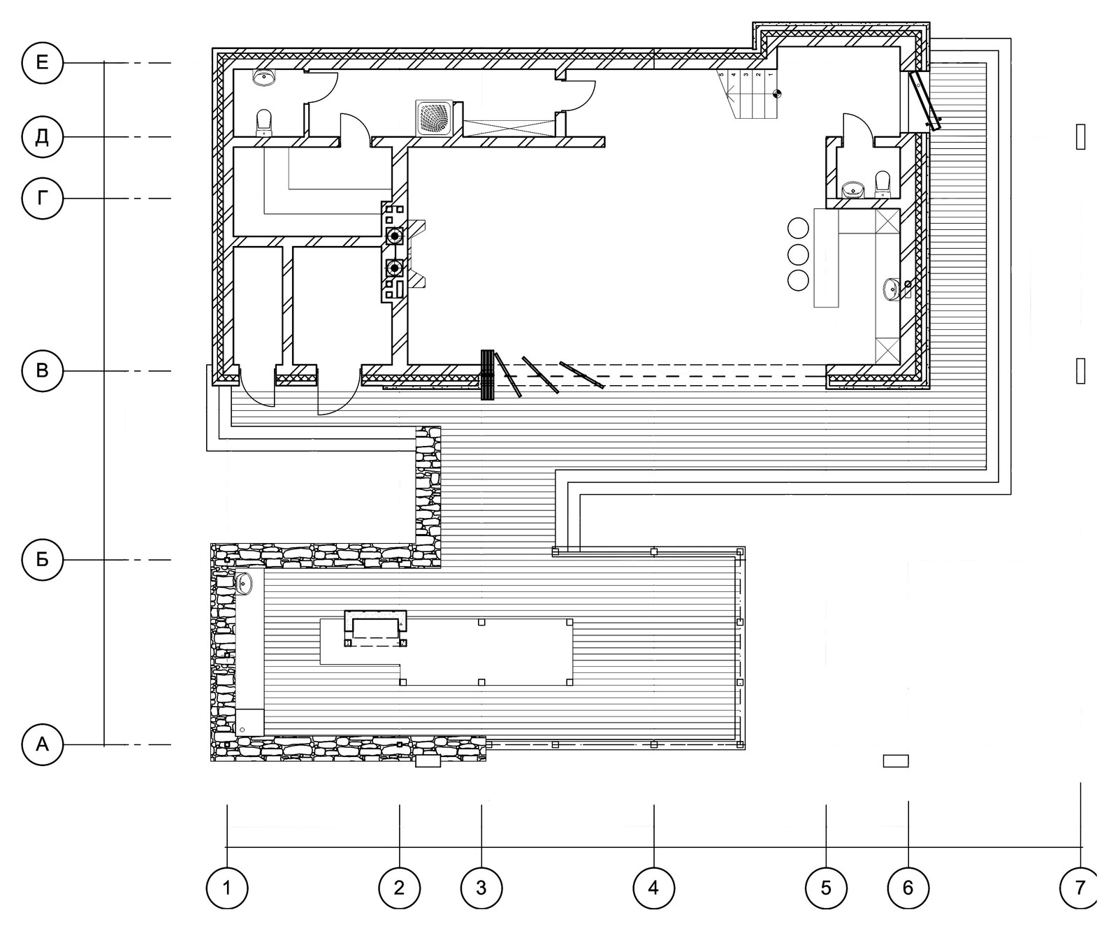
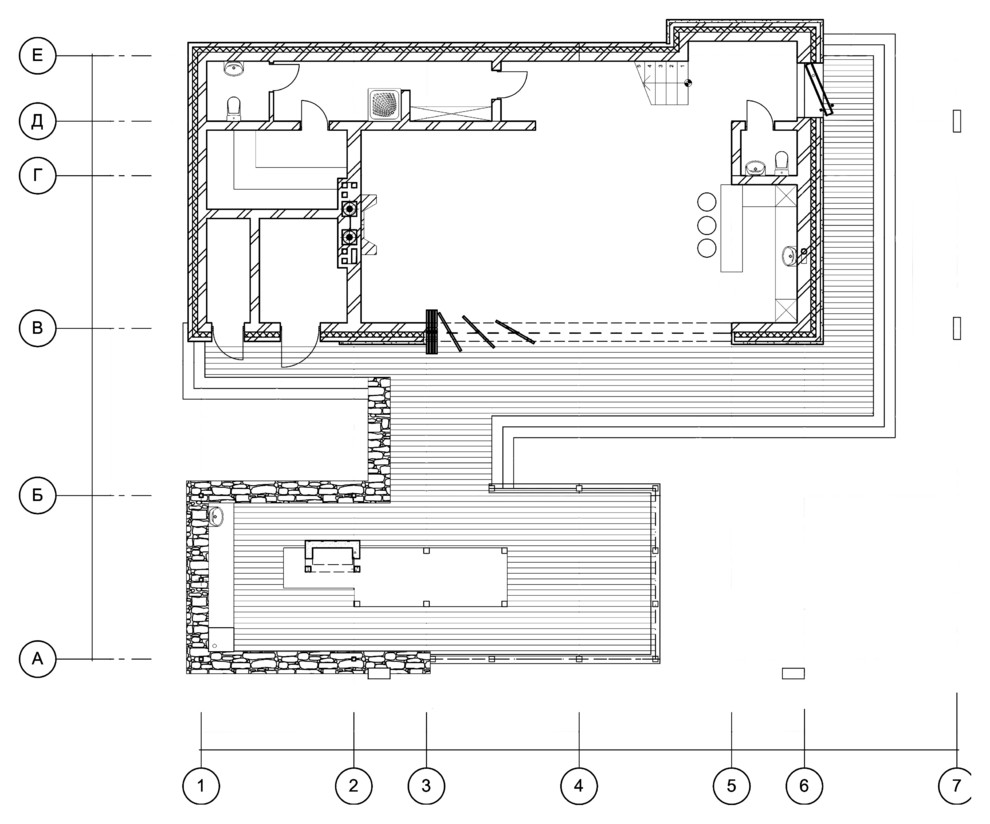
Дом площадью 265 кв. м. исполнен с оглядкой на традиции органической архитектуры. Активно задействованные на фасадах дерево и камень играют ключевую роль в формировании архитектурного облика здания. Камень, использованный в отделке первого этажа, создает ощущение монолитности и основательности. Второй этаж конструктивно выполнен из дерева, он как бы парит над основанием дома. . . Дом имеет 2 надземных этажа и пристроенную террасу-барбекю.
Год реализации: 2015
6 фотографий







